252 Upland Ave Newton, MA 02461-2003
Visit 252 Upland Ave in Newton, MA, 02461-2003
This profile includes property assessor report information, real estate records and a complete residency history.
We have include the current owner’s name and phone number to help you find the right person and learn more.
Building Permits
Aug 7, 2013
Description: Install 20x40 temporary tent. to be removed 8-20-13
- Contractor: B C Tent And Awning Co Inc
- Valuation: $77,400
- Fee: $14.43 paid to City of Newton, Massachusetts
- Parcel #: 83021 0011
- Permit #: 13080269
PROPERTY OVERVIEW
Type: Single Family
4 beds3 baths4,841 sqft
4 beds3 baths4,841 sqft
Facts
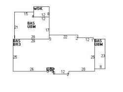
Built in 1955Foundation type: Concrete Property use: Single FamilyRoof type: Gable Lot size: 19,509 sqftRoof material: Asphalt Shingl Effective area: 4,010 sqftHeat type: Hot Wtr Radiat Gross building area: 4,841 sqftFuel type: Oil Building type: ResidentialAir conditioning: Central Rooms: 9Frontage: 100 feet Bedrooms: 4Basement area: 2,365 sqft Bathrooms: 3Finished basement area: 831 sqft Exterior condition: AveragePorch area: 15 sqft Exterior walls: Wood ShingleDeck area: 96 sqft Trim: Full WallBasement garages: 2
Recent residents
| Resident Name | Phone | More Info |
|---|---|---|
| Barbara G Goldman, age 65 | (617) 969-7792 | Status: Previous owner (from Mar 15, 2006 to Mar 15, 2006) Occupation: Administration/Managerial Education: Graduate or professional degree Email: |
| Alan S Penzias, age 65 | (617) 969-7792 | Status: Previous owner (to Mar 15, 2006) Occupation: Service Occupations Education: Associate degree or higher Email: |
| Barbara C Penzias, age 65 | (617) 969-7792 | Status: Previous owner (to Mar 15, 2006) Occupation: Service Occupations Education: Associate degree or higher |
| Alexandra G Dougherty, age 60 | (617) 969-7792 | |
| Barbara L Stjohn, age 65 | (617) 969-7792 | |
| Debra Bloom | Occupation: Machine Operators, Assemblers, and Inspectors Occupations Education: High school graduate or higher |
|
| Richard Bloom | Occupation: Machine Operators, Assemblers, and Inspectors Occupations Education: High school graduate or higher |
|
| Steven H Bloom, age 68 | Occupation: Craftsman/Blue Collar |
|
| Gregory W Penzias, age 33 | Status: Renter |
Neighbors
Assessment history
| Year | Tax | Assessment | Market |
|---|---|---|---|
| 2016 | $883,800.00 | ||
| 2015 | $826,000.00 | ||
| 2014 | $790,300.00 | ||
| 2013 | $900,500.00 | ||
| 2012 | $900,500.00 | ||
| 2011 | $899,600.00 | ||
| 2010 | $918,000.00 | ||
| 2009 | $936,700.00 | ||
| 2008 | $936,700.00 | ||
| 2007 | $961,600.00 | ||
| 2006 | $933,600.00 | ||
| 2005 | $889,100.00 | ||
| 2004 | $819,400.00 | ||
| 2003 | $731,600.00 | ||
| 2002 | $765,200.00 | ||
| 2001 | $649,100.00 | ||
| 2000 | $592,800.00 | ||
| 1999 | $539,400.00 | ||
| 1998 | $461,100.00 | ||
| 1997 | $461,100.00 | ||
| 1996 | $439,100.00 | ||
| 1995 | $397,300.00 | ||
| 1994 | $322,500.00 | ||
| 1993 | $322,500.00 | ||
| 1992 | $379,100.00 |



