3 Staniford St Newton, MA 02466-1209
Visit 3 Staniford St in Newton, MA, 02466-1209
This profile includes property assessor report information, real estate records and a complete residency history.
We have include the current owner’s name and phone number to help you find the right person and learn more.
Building Permits
Nov 23, 2015
Description: Strip and re-roof
- Contractor: Shawn R Bryan
- Valuation: $1,600,000
- Fee: $320.00 paid to City of Newton, Massachusetts
- Parcel #: 41031 0020
- Permit #: 15111023
PROPERTY OVERVIEW
Type: Single Family
3 beds2.5 baths3,299 sqft
3 beds2.5 baths3,299 sqft
Facts
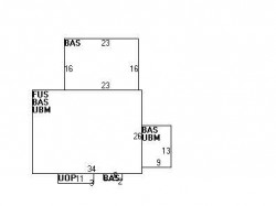
Built in 1911Trim: None Property use: Single FamilyFoundation type: Concrete Lot size: 13,490 sqftRoof type: Hip Effective area: 3,299 sqftRoof material: Asphalt Shingl Building type: ResidentialHeat type: Hot Wtr Radiat Rooms: 7Fuel type: Gas Bedrooms: 3Frontage: 100 feet Stories: 2Basement area: 1,001 sqft Exterior condition: AveragePorch area: 33 sqft Exterior walls: Vinyl SidingDetached garage area: 660 sqft
Recent residents
| Resident Name | Phone | More Info |
|---|---|---|
| 3 STANIFORD STREET REALTY TRUST /S TRS | Status: Last owner (from Jul 12, 1990 to now) |
|
| Maria Nicolazzo, age 89 | (617) 332-7474 | Status: Previous owner (from Jan 10, 1969 to Jul 12, 1990) Occupation: Craftsman/Blue Collar Education: High school graduate or higher Email: |
| Pasqulina Nicolazzo, age 67 | (617) 332-7474 | |
| Bruno Nicolazzo, age 89 | (617) 784-1058 | Status: Previous owner (from Jan 10, 1969 to Jul 12, 1990) Occupation: Professional/Technical Education: Graduate or professional degree |
| Alba Pine | Status: Previous owner (to Jan 10, 1969) |
|
| James L Pine | Status: Previous owner (to Jan 10, 1969) |
Neighbors
Assessment history
| Year | Tax | Assessment | Market |
|---|---|---|---|
| 2016 | $639,500.00 | ||
| 2015 | $597,700.00 | ||
| 2014 | $571,200.00 | ||
| 2013 | $571,200.00 | ||
| 2012 | $571,200.00 | ||
| 2011 | $567,400.00 | ||
| 2010 | $579,000.00 | ||
| 2009 | $590,800.00 | ||
| 2008 | $590,800.00 | ||
| 2007 | $625,500.00 | ||
| 2006 | $607,300.00 | ||
| 2005 | $578,400.00 | ||
| 2004 | $532,700.00 | ||
| 2003 | $445,100.00 | ||
| 2002 | $445,100.00 | ||
| 2001 | $362,200.00 | ||
| 2000 | $330,800.00 | ||
| 1999 | $301,000.00 | ||
| 1998 | $292,700.00 | ||
| 1997 | $292,700.00 | ||
| 1996 | $278,800.00 | ||
| 1995 | $239,300.00 | ||
| 1994 | $234,600.00 | ||
| 1993 | $234,600.00 | ||
| 1992 | $248,400.00 |



