62 Windsor Rd Newton, MA 02468-1504
Visit 62 Windsor Rd in Newton, MA, 02468-1504
This profile includes property assessor report information, real estate records and a complete residency history.
We have include the current owner’s name and phone number to help you find the right person and learn more.
PROPERTY OVERVIEW
Type: Single Family
7 beds5 baths7,096 sqft
7 beds5 baths7,096 sqft
Facts
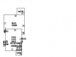
Built in 1900Foundation type: Brick/Fldstone Property use: Single FamilyRoof type: Hip Lot size: 27,383 sqftRoof material: Slate Effective area: 6,532 sqftHeat type: Hot Wtr Radiat Gross building area: 7,096 sqftFuel type: Oil Building type: ResidentialFireplaces: 2 Rooms: 13Frontage: 111 feet Bedrooms: 7Basement area: 2,209 sqft Bathrooms: 5Finished basement area: 1,000 sqft Stories: 2.5Shed area: 192 sqft Exterior condition: AveragePorch area: 160 sqft Exterior walls: Wood ShingleDeck area: 168 sqft Trim: NoneDetached garage area: 504 sqft
Features
Kitchen quality: GoodBath quality: Above Average
Recent residents
| Resident Name | Phone | More Info |
|---|---|---|
| 62 WINDSOR ROAD NOMINEE TRUST /S TR | Status: Last owner (from Jan 09, 2001 to now) |
|
| Dennis K Waldman, age 71 | (617) 795-7202 | Status: Previous owner (from Jan 09, 2001 to Jan 09, 2001) Occupation: Protective Service Occupations Education: High school graduate or higher Email: |
| Devin Waldman, age 39 | (617) 795-7202 | |
| Susan H Waldman, age 71 | (617) 795-7202 | |
| WALDMAN SUSAN HINMAN &AL | Status: Previous owner (to Jan 09, 2001) |
|
| JAIA-REIRSTAD P A | Status: Previous owner (from Aug 12, 1983) |
|
| Glenn Reirstad | Status: Previous owner (from Aug 12, 1983) |
|
| Robert L Mcwilliams | Status: Previous owner (from Jul 05, 1959 to Aug 12, 1983) |
|
| Edith B Mcwilliams | Status: Previous owner (from Jul 05, 1959 to Aug 12, 1983) |
|
| Irina Rusanova | Status: Previous owner (to Jul 05, 1959) |
|
| Davis T Gallison Jr | Status: Previous owner (from Apr 01, 1953) |
|
| Rachel B Gallison | Status: Previous owner (from Apr 01, 1953) |
|
| SOUTH BOSTON SAVINGS BANK | Status: Previous owner (to Apr 01, 1953) |
|
| K W Dennis | ||
| Edna Rose | (508) 539-3050 | |
| Norman Rose | (508) 954-8873 | Occupation: Sales Occupations Education: High school graduate or higher |
| Sandra Rose | (508) 954-8873 | Occupation: Sales Occupations Education: High school graduate or higher |
| Virginia Rose | (508) 954-8873 | Occupation: Sales Occupations Education: High school graduate or higher |
| Lisi Sesnovich | (617) 969-2990 | |
| Saralee G Sesnovich, age 66 #1 | (617) 969-2990 | Status: Renter Occupation: Protective Service Occupations Education: Graduate or professional degree |
| David R Steffan | (617) 969-0919 | |
| Derek Waldman, age 41 | (617) 930-1733 | |
| Jacob Barrett Waldman, age 35 | ||
| Janice D Woodhouse, age 57 | (617) 527-3853 |
Business records related to this address
| Organization | Phone | More Info |
|---|---|---|
| Barrett Productions, LLC | Industry: Motion Picture/tape Distribution Business type: Domestic Limited Liability Company (LLC) |
|
| Cognatus Innovations, LLC | Industry: Nonclassifiable Establishments |
Neighbors
Assessment history
| Year | Tax | Assessment | Market |
|---|---|---|---|
| 2016 | $2,316,200.00 | ||
| 2015 | $2,164,700.00 | ||
| 2014 | $2,046,800.00 | ||
| 2013 | $2,046,800.00 | ||
| 2012 | $2,046,800.00 | ||
| 2011 | $2,122,700.00 | ||
| 2010 | $2,166,000.00 | ||
| 2009 | $2,210,200.00 | ||
| 2008 | $2,210,200.00 | ||
| 2007 | $2,050,000.00 | ||
| 2006 | $1,990,300.00 | ||
| 2005 | $1,895,500.00 | ||
| 2004 | $1,726,000.00 | ||
| 2003 | $1,541,100.00 | ||
| 2002 | $1,541,100.00 | ||
| 2001 | $1,174,600.00 | ||
| 2000 | $1,072,700.00 | ||
| 1999 | $976,100.00 | ||
| 1998 | $742,400.00 | ||
| 1997 | $742,400.00 | ||
| 1996 | $707,000.00 | ||
| 1995 | $700,700.00 | ||
| 1994 | $667,300.00 | ||
| 1993 | $667,300.00 | ||
| 1992 | $684,000.00 |



