7 Dorset Rd Newton, MA 02468-1457
Visit 7 Dorset Rd in Newton, MA, 02468-1457
This profile includes property assessor report information, real estate records and a complete residency history.
We have include the current owner’s name and phone number to help you find the right person and learn more.
PROPERTY OVERVIEW
Type: Single Family
4 beds3 baths4,225 sqft
4 beds3 baths4,225 sqft
Facts
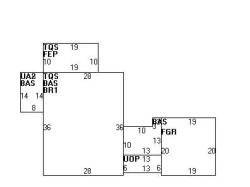
Built in 1941Roof type: Gable Property use: Single FamilyRoof material: Slate Lot size: 19,180 sqftHeat type: Hot Wtr Radiat Effective area: 3,195 sqftFuel type: Gas Gross building area: 4,225 sqftFireplaces: 2 Building type: ResidentialFrontage: 149 feet Rooms: 8Unfinished attic area: 56 sqft Bedrooms: 3Basement area: 1,008 sqft Stories: 1.75Finished basement area: 333 sqft Exterior condition: AverageShed area: 32 sqft Exterior walls: Wood ShinglePorch area: 78 sqft Trim: NoneEnclosed porch area: 190 sqft Foundation type: ConcreteAttached garage area: 380 sqft
Recent residents
| Resident Name | Phone | More Info |
|---|---|---|
| Megan E Young, age 48 | Status: Last owner (from Aug 15, 2014 to now) |
|
| EGAN DANIEL F III | Status: Last owner (from Aug 15, 2014 to now) |
|
| FUNKHOUSER JUDITH ANN BOWERING | Status: Previous owner (to Aug 15, 2014) |
|
| Judith B Funkhouser, age 84 | (617) 558-0625 | Status: Previous owner (from Jul 30, 1998) Occupation: Retired Education: Graduate or professional degree |
| Emily C Funkhouser, age 44 | (617) 558-0625 | |
| BOSTON SAFE DEPOSIT & TRUST COMPANY &AL EXORS | Status: Previous owner (to Jul 30, 1998) |
|
| KNAPP GEORGE P III &AL EXORS | Status: Previous owner (to Jul 30, 1998) |
|
| KNAPP GEORGE P /S EXOR | Status: Previous owner (to Jul 30, 1998) |
|
| Ella V Bowering | Status: Homeowner Occupation: Food Preparation and Serving Related Occupations Education: High school graduate or higher |
|
| John Condon, age 91 | Status: Homeowner Occupation: Retired Education: High school graduate or higher |
|
| Daniel F Egan, age 48 | (617) 244-4840 | Status: Renter |
| Elmer Funkhouser | (617) 842-4809 | Status: Homeowner Occupation: Food Preparation and Serving Related Occupations Education: Bachelor's degree or higher |
| Ellen C Keefe, age 77 |
Neighbors
284 Dorset Rd
H A Matzkin
H A Matzkin
Assessment history
| Year | Tax | Assessment | Market |
|---|---|---|---|
| 2016 | $882,900.00 | ||
| 2015 | $825,100.00 | ||
| 2014 | $787,600.00 | ||
| 2013 | $787,600.00 | ||
| 2012 | $787,600.00 | ||
| 2011 | $786,300.00 | ||
| 2010 | $802,300.00 | ||
| 2009 | $817,600.00 | ||
| 2008 | $817,600.00 | ||
| 2007 | $855,500.00 | ||
| 2006 | $830,600.00 | ||
| 2005 | $791,000.00 | ||
| 2004 | $790,200.00 | ||
| 2003 | $705,500.00 | ||
| 2002 | $705,500.00 | ||
| 2001 | $569,900.00 | ||
| 2000 | $542,800.00 | ||
| 1999 | $493,900.00 | ||
| 1998 | $442,400.00 | ||
| 1997 | $419,300.00 | ||
| 1996 | $399,300.00 | ||
| 1995 | $378,200.00 | ||
| 1994 | $350,200.00 | ||
| 1993 | $350,200.00 | ||
| 1992 | $373,700.00 |



