516 Ward St Newton, MA 02459-1109
Visit 516 Ward St in Newton, MA, 02459-1109
This profile includes property assessor report information, real estate records and a complete residency history.
We have include the current owner’s name and phone number to help you find the right person and learn more.
PROPERTY OVERVIEW
Type: Single Family
4 beds3 baths3,969 sqft
                4 beds3 baths3,969 sqft
Facts
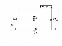
                        Built in 1915Trim: None                        Property use: Single FamilyFoundation type: Brick/Fldstone                        Lot size: 17,344 sqftRoof type: Hip                        Effective area: 3,185 sqftRoof material: Slate                        Gross building area: 3,969 sqftHeat type: Steam                        Building type: ResidentialFuel type: Gas                        Rooms: 9Frontage: 90 feet                        Bedrooms: 4Basement area: 1,176 sqft                        Bathrooms: 3Finished basement area: 392 sqft                        Stories: 2Porch area: 224 sqft                        Exterior condition: AverageEnclosed porch area: 40 sqft                        Exterior walls: Wood ShingleDetached garage area: 528 sqft                    
                Features
                        Bath quality: Below Average                    
                Recent residents
| Resident Name | Phone | More Info | 
|---|---|---|
| 516 WARD STREET REALTY TRUST | Status: Last owner (from Oct 31, 2013 to now) | |
| Matilda T Bruckner, age 78 | (617) 244-3345 | Status: Previous owner (from Oct 31, 2013 to Oct 31, 2013) | 
| Edward S Bruckner, age 83 | (617) 244-3345 | Status: Previous owner (from Oct 31, 2013 to Oct 31, 2013) | 
| Daniel Bruckner, age 40 | (617) 244-3345 | Status: Homeowner Occupation: Professional/Technical | 
| Ed S Bruckner, age 83 | (617) 244-3345 | |
| Raphael J Bruckner, age 47 | (347) 439-7763 | Status: Homeowner Occupation: Food Preparation and Serving Related Occupations Education: Associate degree or higher Email: | 
| Mary G Tomaryn, age 102 | (617) 244-5497 | 
Neighbors
Assessment history
| Year | Tax | Assessment | Market | 
|---|---|---|---|
| 2016 | $972,800.00 | ||
| 2015 | $909,200.00 | ||
| 2014 | $866,900.00 | ||
| 2013 | $866,900.00 | ||
| 2012 | $866,900.00 | ||
| 2011 | $862,100.00 | ||
| 2010 | $911,400.00 | ||
| 2009 | $930,000.00 | ||
| 2008 | $930,000.00 | ||
| 2007 | $976,300.00 | ||
| 2006 | $947,900.00 | ||
| 2005 | $902,800.00 | ||
| 2004 | $812,200.00 | ||
| 2003 | $725,200.00 | ||
| 2002 | $725,200.00 | ||
| 2001 | $612,500.00 | ||
| 2000 | $559,400.00 | ||
| 1999 | $509,000.00 | ||
| 1998 | $457,900.00 | ||
| 1997 | $420,100.00 | ||
| 1996 | $400,100.00 | ||
| 1995 | $389,800.00 | ||
| 1994 | $371,200.00 | ||
| 1993 | $371,200.00 | ||
| 1992 | $388,200.00 | 



