8 Elm Ct Newton, MA 02465-1535
Visit 8 Elm Ct in Newton, MA, 02465-1535
This profile includes property assessor report information, real estate records and a complete residency history.
We have include the current owner’s name and phone number to help you find the right person and learn more.
PROPERTY OVERVIEW
Type: Single Family
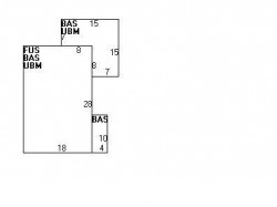
3 beds1 bath1,874 sqft
3 beds1 bath1,874 sqft
Facts
Built in 1918Exterior walls: Vinyl Siding Property use: Single FamilyTrim: None Lot size: 4,890 sqftFoundation type: Brick/Fldstone Effective area: 1,874 sqftRoof type: Gable Building type: ResidentialRoof material: Asphalt Shingl Rooms: 5Heat type: Hot Wtr Radiat Bedrooms: 3Fuel type: Oil Bathrooms: 1Frontage: 45 feet Stories: 2Basement area: 665 sqft Exterior condition: Average
Features
Kitchen quality: Below Average
Recent residents
| Resident Name | Phone | More Info |
|---|---|---|
| Daniel J Wallace Jr, age 69 | (617) 785-6348 | Status: Last owner (from Aug 02, 1999 to now) Occupation: Healthcare Support Occupations |
| Josephine M Pace | Status: Previous owner (to Aug 02, 1999) |
|
| PACE JOSEPHINE M &AL LIFE EST | Status: Previous owner (from Oct 25, 1990) |
|
| PACE ROSARIO F &AL LIFE EST | Status: Previous owner (from Oct 25, 1990) |
|
| Richard P Pace | Status: Previous owner (from Oct 25, 1990 to Aug 02, 1999) |
|
| Lawrence J Pace | Status: Previous owner (from Oct 25, 1990 to Aug 02, 1999) |
|
| Rosario F Pace | (617) 527-2437 | Status: Previous owner (to Oct 25, 1990) |
| J Pace, age 102 |
Neighbors
51 Elm Ct
C John Arpino
C John Arpino
Real estate transaction history
| Date | Event | Price | Source | Agents |
|---|---|---|---|---|
| 08/02/1999 | Sold | $218,000 | Public records |
Assessment history
| Year | Tax | Assessment | Market |
|---|---|---|---|
| 2016 | $396,600.00 | ||
| 2015 | $370,700.00 | ||
| 2014 | $352,900.00 | ||
| 2013 | $352,900.00 | ||
| 2012 | $352,900.00 | ||
| 2011 | $362,400.00 | ||
| 2010 | $369,800.00 | ||
| 2009 | $377,300.00 | ||
| 2008 | $377,300.00 | ||
| 2007 | $378,300.00 | ||
| 2006 | $367,300.00 | ||
| 2005 | $349,800.00 | ||
| 2004 | $311,200.00 | ||
| 2003 | $277,900.00 | ||
| 2002 | $277,900.00 | ||
| 2001 | $225,400.00 | ||
| 2000 | $205,800.00 | ||
| 1999 | $187,300.00 | ||
| 1998 | $176,400.00 | ||
| 1997 | $167,200.00 | ||
| 1996 | $159,200.00 | ||
| 1995 | $151,900.00 | ||
| 1994 | $151,900.00 | ||
| 1993 | $151,900.00 | ||
| 1992 | $158,700.00 |



