1010 Boylston St Newton, MA 02461-1316
Visit 1010 Boylston St in Newton, MA, 02461-1316
This profile includes property assessor report information, real estate records and a complete residency history.
We have include the current owner’s name and phone number to help you find the right person and learn more.
PROPERTY OVERVIEW
Type: Single Family
3 beds1.5 baths2,216 sqft
3 beds1.5 baths2,216 sqft
Facts
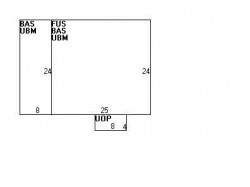
Built in 1935Trim: None Property use: Single FamilyFoundation type: Brick/Fldstone Lot size: 4,380 sqftRoof type: Hip Effective area: 2,216 sqftRoof material: Asphalt Shingl Building type: ResidentialHeat type: Hot Wtr Radiat Rooms: 5Fuel type: Oil Bedrooms: 3Frontage: 47 feet Bathrooms: 1Basement area: 792 sqft Stories: 2Shed area: 180 sqft Exterior condition: PoorPorch area: 32 sqft Exterior walls: Vinyl Siding
Features
Kitchen quality: Above AverageInterior condition: Good
Recent residents
| Resident Name | Phone | More Info |
|---|---|---|
| Annette L Michell, age 65 | (617) 244-3478 | Status: Last owner (from Mar 19, 1999 to now) Occupation: Executive, Administrative, and Managerial Occupations Education: High school graduate or higher |
| Bailey A Michell, age 29 | (617) 244-3478 | Status: Renter |
| A L Michelle | (617) 244-3478 | |
| Annette L Michelle, age 65 | (617) 244-3478 | Status: Homeowner Occupation: Professional/Technical |
| LESANTO DEVELOPMENT CORPORATION | Status: Previous owner (from Sep 29, 1998 to Mar 19, 1999) |
|
| Abdolkarim Shokrollahi | Status: Previous owner (to Sep 29, 1998) |
|
| A Shokrollahi |
Neighbors
1028 Boylston St
A Li
A Li
Real estate transaction history
| Date | Event | Price | Source | Agents |
|---|---|---|---|---|
| 03/19/1999 | Sold | $269,000 | Public records | |
| 09/29/1998 | Sold | $137,000 | Public records | |
| 06/12/1998 | Sold | $95,000 | Public records |
Assessment history
| Year | Tax | Assessment | Market |
|---|---|---|---|
| 2016 | $414,700.00 | ||
| 2015 | $387,600.00 | ||
| 2014 | $368,500.00 | ||
| 2013 | $368,500.00 | ||
| 2012 | $368,500.00 | ||
| 2011 | $358,300.00 | ||
| 2010 | $365,600.00 | ||
| 2009 | $373,100.00 | ||
| 2008 | $373,100.00 | ||
| 2007 | $372,400.00 | ||
| 2006 | $361,600.00 | ||
| 2005 | $344,400.00 | ||
| 2004 | $324,000.00 | ||
| 2003 | $289,300.00 | ||
| 2002 | $289,300.00 | ||
| 2001 | $270,800.00 | ||
| 2000 | $247,300.00 | ||
| 1999 | $192,200.00 | ||
| 1998 | $155,400.00 | ||
| 1997 | $142,600.00 | ||
| 1996 | $135,800.00 | ||
| 1995 | $135,800.00 | ||
| 1994 | $135,800.00 | ||
| 1993 | $135,800.00 | ||
| 1992 | $147,300.00 |



