1073 Walnut St Newton, MA 02461-1249
Visit 1073 Walnut St in Newton, MA, 02461-1249
This profile includes property assessor report information, real estate records and a complete residency history.
We have include the current owner’s name and phone number to help you find the right person and learn more.
For Sale
$1,295,000
Market Activities
Oct 2022 - present
PROPERTY OVERVIEW
Type: Single Family
3 beds1.5 baths3,068 sqft
3 beds1.5 baths3,068 sqft
Facts
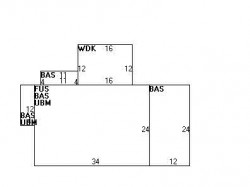
Built in 1950Trim: None Property use: Single FamilyFoundation type: Conc Block Lot size: 15,270 sqftRoof type: Gable Effective area: 3,068 sqftRoof material: Asphalt Shingl Building type: ResidentialHeat type: Hot Wtr Radiat Rooms: 7Fuel type: Oil Bedrooms: 3Frontage: 100 feet Stories: 2Basement area: 864 sqft Exterior condition: AverageDeck area: 192 sqft Exterior walls: Wood Shingle
Features
Kitchen quality: Above AverageInterior condition: Good
Recent residents
| Resident Name | Phone | More Info |
|---|---|---|
| BARBARA A SMILEY 1999 REVOCABLE TRUST S TR | Status: Last owner (from Jan 07, 2000 to now) |
|
| Barbara A Smiley, age 81 | (617) 527-5729 | Status: Previous owner (from Jan 07, 2000 to Jan 07, 2000) Occupation: Retired Education: Graduate or professional degree Email: |
| A S Barbara |
Neighbors
Assessment history
| Year | Tax | Assessment | Market |
|---|---|---|---|
| 2016 | $764,600.00 | ||
| 2015 | $714,600.00 | ||
| 2014 | $681,200.00 | ||
| 2013 | $681,200.00 | ||
| 2012 | $681,200.00 | ||
| 2011 | $659,600.00 | ||
| 2010 | $673,100.00 | ||
| 2009 | $686,800.00 | ||
| 2008 | $686,800.00 | ||
| 2007 | $692,400.00 | ||
| 2006 | $672,200.00 | ||
| 2005 | $640,200.00 | ||
| 2004 | $598,500.00 | ||
| 2003 | $534,400.00 | ||
| 2002 | $534,400.00 | ||
| 2001 | $457,300.00 | ||
| 2000 | $417,600.00 | ||
| 1999 | $380,000.00 | ||
| 1998 | $343,000.00 | ||
| 1997 | $314,700.00 | ||
| 1996 | $299,700.00 | ||
| 1995 | $244,600.00 | ||
| 1994 | $230,800.00 | ||
| 1993 | $230,800.00 | ||
| 1992 | $243,700.00 |



