11 Durant St Newton, MA 02458-2427
Visit 11 Durant St in Newton, MA, 02458-2427
This profile includes property assessor report information, real estate records and a complete residency history.
We have include the current owner’s name and phone number to help you find the right person and learn more.
PROPERTY OVERVIEW
Type: Single Family
4 beds2.5 baths3,086 sqft
4 beds2.5 baths3,086 sqft
Facts
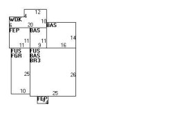
Built in 1940Foundation type: Concrete Property use: Single FamilyRoof type: Hip Lot size: 9,000 sqftRoof material: Asphalt Shingl Effective area: 2,761 sqftHeat type: Hot Wtr Radiat Gross building area: 3,086 sqftFuel type: Oil Building type: ResidentialAir conditioning: Unit/AC Rooms: 8Frontage: 60 feet Bedrooms: 4Basement area: 650 sqft Stories: 2Finished basement area: 325 sqft Exterior condition: AverageEnclosed porch area: 145 sqft Exterior walls: Wood ShingleDeck area: 168 sqft Trim: NoneAttached garage area: 250 sqft
Recent residents
| Resident Name | Phone | More Info |
|---|---|---|
| ROBERT OTT REVOCABLE TRUST AGREEMENT | Status: Last owner (from May 21, 2012 to now) |
|
| ROSALINDA J OTT REVOCABLE TRUST AGREEMENT | Status: Last owner (from May 21, 2012 to now) |
|
| Rosalinda J Ott, age 86 | (617) 527-5722 | Status: Previous owner (from May 21, 2012 to May 21, 2012) Occupation: Medical Professional Education: Graduate or professional degree |
| Robert F Ott Jr, age 86 | (617) 527-5722 | Status: Previous owner (from May 21, 2012 to May 21, 2012) Occupation: Clerical/White Collar Education: Associate degree or higher |
| Robt F Ott, age 86 | (617) 527-5722 |
Neighbors
Assessment history
| Year | Tax | Assessment | Market |
|---|---|---|---|
| 2016 | $707,700.00 | ||
| 2015 | $661,400.00 | ||
| 2014 | $633,000.00 | ||
| 2013 | $633,000.00 | ||
| 2012 | $633,000.00 | ||
| 2011 | $644,400.00 | ||
| 2010 | $657,600.00 | ||
| 2009 | $671,000.00 | ||
| 2008 | $671,000.00 | ||
| 2007 | $693,300.00 | ||
| 2006 | $673,100.00 | ||
| 2005 | $641,000.00 | ||
| 2004 | $588,700.00 | ||
| 2003 | $525,600.00 | ||
| 2002 | $525,600.00 | ||
| 2001 | $454,500.00 | ||
| 2000 | $415,100.00 | ||
| 1999 | $377,700.00 | ||
| 1998 | $335,900.00 | ||
| 1997 | $312,500.00 | ||
| 1996 | $297,600.00 | ||
| 1995 | $281,900.00 | ||
| 1994 | $281,900.00 | ||
| 1993 | $281,900.00 | ||
| 1992 | $276,300.00 |



