11 Sheffield Rd Newton, MA 02460-2120
Visit 11 Sheffield Rd in Newton, MA, 02460-2120
This profile includes property assessor report information, real estate records and a complete residency history.
We have include the current owner’s name and phone number to help you find the right person and learn more.
PROPERTY OVERVIEW
Type: Single Family
4 beds2.5 baths4,311 sqft
4 beds2.5 baths4,311 sqft
Facts
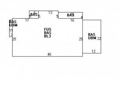
Built in 1920Trim: None Property use: Single FamilyFoundation type: Concrete Lot size: 10,725 sqftRoof type: Hip Effective area: 3,704 sqftRoof material: Clay Tile Gross building area: 4,311 sqftHeat type: Hot Wtr Radiat Building type: ResidentialFuel type: Gas Rooms: 9Air conditioning: Central Bedrooms: 4Frontage: 80 feet Bathrooms: 3Basement area: 1,501 sqft Stories: 2Finished basement area: 608 sqft Exterior condition: AverageDetached garage area: 400 sqft Exterior walls: Stucco on Wood
Features
Kitchen quality: Above Average
Recent residents
| Resident Name | Phone | More Info |
|---|---|---|
| Francis R Corrado, age 73 | (617) 969-6210 | Status: Last owner (from Jul 17, 1991 to now) |
| Julianne Wayne | Status: Previous owner (to Jul 17, 1991) |
|
| Kristin Loeffler, age 58 | ||
| Nancy E Loughran, age 64 | Status: Homeowner Occupation: Installation, Maintenance, and Repair Occupations Education: High school graduate or higher |
Historical businesses records
| Organization | Phone | More Info |
|---|---|---|
| MERRIMAC SPORTSWEAR, INC | Business type: Domestic Profit Corporation Inactive: 19901231 |
Neighbors
42 Sheffield Rd
B D Ferguson
B D Ferguson
Real estate transaction history
| Date | Event | Price | Source | Agents |
|---|---|---|---|---|
| 07/17/1991 | Sold | $475,000 | Public records |
Assessment history
| Year | Tax | Assessment | Market |
|---|---|---|---|
| 2016 | $1,231,500.00 | ||
| 2015 | $1,062,500.00 | ||
| 2014 | $1,006,700.00 | ||
| 2013 | $1,006,700.00 | ||
| 2012 | $1,006,700.00 | ||
| 2011 | $1,004,000.00 | ||
| 2010 | $1,024,500.00 | ||
| 2009 | $1,045,400.00 | ||
| 2008 | $1,045,400.00 | ||
| 2007 | $1,109,100.00 | ||
| 2006 | $1,076,800.00 | ||
| 2005 | $1,025,500.00 | ||
| 2004 | $900,000.00 | ||
| 2003 | $803,600.00 | ||
| 2002 | $803,600.00 | ||
| 2001 | $694,400.00 | ||
| 2000 | $634,200.00 | ||
| 1999 | $577,100.00 | ||
| 1998 | $516,800.00 | ||
| 1997 | $492,200.00 | ||
| 1996 | $468,800.00 | ||
| 1995 | $425,900.00 | ||
| 1994 | $417,600.00 | ||
| 1993 | $417,600.00 | ||
| 1992 | $423,700.00 |



