118 Wiswall Rd Newton, MA 02459-3512
Visit 118 Wiswall Rd in Newton, MA, 02459-3512
This profile includes property assessor report information, real estate records and a complete residency history.
We have include the current owner’s name and phone number to help you find the right person and learn more.
PROPERTY OVERVIEW
Type: Single Family
2 beds1 bath1,445 sqft
2 beds1 bath1,445 sqft
Facts
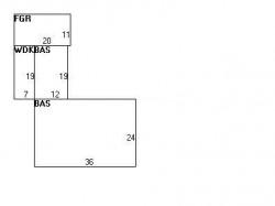
Built in 1950Trim: None Property use: Single FamilyFoundation type: Slab Lot size: 10,100 sqftRoof type: Gable Effective area: 1,445 sqftRoof material: Asphalt Shingl Building type: ResidentialHeat type: Hot Water Rooms: 6Fuel type: Gas Bedrooms: 2Frontage: 80 feet Stories: 1Deck area: 133 sqft Exterior condition: AverageAttached garage area: 220 sqft Exterior walls: Vinyl Siding
Features
Kitchen quality: Above AverageInterior condition: Good
Recent residents
| Resident Name | Phone | More Info |
|---|---|---|
| Juan C Ramirez | Status: Last owner (from Dec 10, 2001 to now) Occupation: Administrative Support Occupations, Including Clerical Occupations Education: High school graduate or higher |
|
| ROONEY DOROTHY B EXTRX | Status: Previous owner (to Dec 10, 2001) |
|
| ROONEY HELEN E EST | Status: Previous owner (to Dec 10, 2001) |
|
| Ian D Malcolm | Status: Previous owner (from Jul 20, 1973) |
|
| Kathryn I Malcolm | Status: Previous owner (from Jul 20, 1973) |
|
| Richard O Knox | Status: Previous owner (to Jul 20, 1973) |
|
| Shirley S Knox | Status: Previous owner (to Jul 20, 1973) |
|
| Helen E Rooney, age 107 | (617) 969-6215 | Status: Previous owner (from Jan 26, 1966) |
| Rodney A Russell | Status: Previous owner (from Aug 19, 1959 to Jan 26, 1966) |
|
| Mary H Russell | Status: Previous owner (from Aug 19, 1959 to Jan 26, 1966) |
|
| Shawn Coffey | (617) 916-9412 | |
| Xiaoguang Sun, age 53 | (617) 795-1634 | Status: Homeowner |
Neighbors
Real estate transaction history
| Date | Event | Price | Source | Agents |
|---|---|---|---|---|
| 12/10/2001 | Sold | $290,000 | Public records |
Assessment history
| Year | Tax | Assessment | Market |
|---|---|---|---|
| 2016 | $422,000.00 | ||
| 2015 | $394,400.00 | ||
| 2014 | $374,200.00 | ||
| 2013 | $374,200.00 | ||
| 2012 | $374,200.00 | ||
| 2011 | $372,000.00 | ||
| 2010 | $379,600.00 | ||
| 2009 | $387,300.00 | ||
| 2008 | $387,300.00 | ||
| 2007 | $426,600.00 | ||
| 2006 | $414,200.00 | ||
| 2005 | $394,500.00 | ||
| 2004 | $330,700.00 | ||
| 2003 | $295,300.00 | ||
| 2002 | $295,300.00 | ||
| 2001 | $256,700.00 | ||
| 2000 | $234,400.00 | ||
| 1999 | $213,300.00 | ||
| 1998 | $184,000.00 | ||
| 1997 | $168,800.00 | ||
| 1996 | $168,800.00 | ||
| 1995 | $144,700.00 | ||
| 1994 | $141,900.00 | ||
| 1993 | $141,900.00 | ||
| 1992 | $159,400.00 |



