12 Cottage Pl Newton, MA 02465-1525
Visit 12 Cottage Pl in Newton, MA, 02465-1525
This profile includes property assessor report information, real estate records and a complete residency history.
We have include the current owner’s name and phone number to help you find the right person and learn more.
PROPERTY OVERVIEW
Type: Single Family
3 beds1.5 baths2,085 sqft
3 beds1.5 baths2,085 sqft
Facts
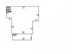
Built in 1900Trim: None Property use: Single FamilyFoundation type: Brick/Fldstone Lot size: 3,049 sqftRoof type: Gable Effective area: 2,085 sqftRoof material: Asphalt Shingl Building type: ResidentialHeat type: Hot Wtr Radiat Rooms: 5Fuel type: Gas Bedrooms: 3Frontage: 60 feet Bathrooms: 1Basement area: 659 sqft Stories: 2Shed area: 64 sqft Exterior condition: GoodEnclosed porch area: 108 sqft Exterior walls: Asbest Shingle
Features
Kitchen quality: Below AverageInterior condition: Average Bath quality: Above Average
Listing info
Price: $2,500Status: For Rent
Recent residents
Resident Name | Phone | More Info |
---|---|---|
DU ZIJING | Status: Last owner (from Dec 04, 2013 to now) |
|
Yuehong Xu | Status: Last owner (from Dec 04, 2013 to now) |
|
Jorge L Sotelo | Status: Previous owner (from Feb 24, 2006 to Dec 04, 2013) |
|
Jennifer K Gentile, age 49 | Status: Previous owner (from Feb 24, 2006 to Jan 13, 2009) |
|
Leeann Heffernan | Status: Previous owner (from Dec 17, 2004 to Feb 24, 2006) |
|
Brian M Heffernan | Status: Previous owner (from Jul 10, 2002 to Feb 24, 2006) |
|
THERESA J HIGGINS TRUST /S TR | Status: Previous owner (from Apr 25, 1991 to Jul 10, 2002) |
|
Theresa J Tr Higgins | Status: Previous owner (from Jan 21, 1959 to Jul 10, 2002) Occupation: Food Preparation and Serving Related Occupations Education: Associate degree or higher |
|
Leroy F Higgins | Status: Previous owner (from Jan 21, 1959 to Sep 30, 1987) Occupation: Food Preparation and Serving Related Occupations Education: Associate degree or higher |
|
Esther Rizza | Status: Previous owner (to Jan 21, 1959) |
|
Samuel Rizza | Status: Previous owner (to Jan 21, 1959) |
|
Thomas Feeney | ||
Brenda M Forsythe, age 66 | Status: Renter |
|
Brian M Hefferman, age 57 | (617) 969-3431 | |
Leeann A Morrison | (617) 969-3431 | Status: Renter Occupation: Protective Service Occupations |
Janet Higgins | Status: Homeowner Occupation: Food Preparation and Serving Related Occupations Education: Associate degree or higher Email: |
Neighbors
Assessment history
Year | Tax | Assessment | Market |
---|---|---|---|
2016 | $410,500.00 | ||
2015 | $383,500.00 | ||
2014 | $365,500.00 | ||
2013 | $365,500.00 | ||
2012 | $365,500.00 | ||
2011 | $377,200.00 | ||
2010 | $384,900.00 | ||
2009 | $392,800.00 | ||
2008 | $392,800.00 | ||
2007 | $380,800.00 | ||
2006 | $369,700.00 | ||
2005 | $352,100.00 | ||
2004 | $310,200.00 | ||
2003 | $277,000.00 | ||
2002 | $277,000.00 | ||
2001 | $225,400.00 | ||
2000 | $205,800.00 | ||
1999 | $187,300.00 | ||
1998 | $166,600.00 | ||
1997 | $157,900.00 | ||
1996 | $150,400.00 | ||
1995 | $148,300.00 | ||
1994 | $148,300.00 | ||
1993 | $143,300.00 | ||
1992 | $157,700.00 |
Local Brokers
