12 Shute Path Newton, MA 02459-3633
Visit 12 Shute Path in Newton, MA, 02459-3633
This profile includes property assessor report information, real estate records and a complete residency history.
We have include the current owner’s name and phone number to help you find the right person and learn more.
Sold Nov 2017
$1,349,900
Market Activities
Jul 2016 - Nov 2017
Jul 2016 - Nov 2017
PROPERTY OVERVIEW
Type: Single Family
2 beds1 bath1,323 sqft
2 beds1 bath1,323 sqft
Facts
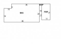
Built in 1955Trim: None Property use: Single FamilyFoundation type: Slab Lot size: 7,004 sqftRoof type: Gable Effective area: 1,323 sqftRoof material: Asphalt Shingl Building type: ResidentialHeat type: Radiant Rooms: 5Fuel type: Gas Bedrooms: 3Frontage: 120 feet Exterior condition: AveragePorch area: 48 sqft Exterior walls: Vinyl SidingAttached garage area: 231 sqft
Features
Kitchen quality: Below AverageInterior condition: Fair
Recent residents
| Resident Name | Phone | More Info |
|---|---|---|
| Miriam R Adams, age 79 | (617) 332-4524 | Status: Last owner (from May 30, 1990 to now) Occupation: Clerical/White Collar Education: High school graduate or higher Email: |
| Herman M Hurwitz | (617) 332-4524 | Status: Previous owner (from May 30, 1990 to May 30, 1990) |
| Marion R Adams | (617) 332-4524 |
Neighbors
Assessment history
| Year | Tax | Assessment | Market |
|---|---|---|---|
| 2016 | $280,800.00 | ||
| 2015 | $262,400.00 | ||
| 2014 | $251,600.00 | ||
| 2013 | $251,600.00 | ||
| 2012 | $251,600.00 | ||
| 2011 | $255,200.00 | ||
| 2010 | $260,400.00 | ||
| 2009 | $265,700.00 | ||
| 2008 | $265,700.00 | ||
| 2007 | $310,500.00 | ||
| 2006 | $301,500.00 | ||
| 2005 | $287,100.00 | ||
| 2004 | $232,800.00 | ||
| 2003 | $207,900.00 | ||
| 2002 | $207,900.00 | ||
| 2001 | $186,500.00 | ||
| 2000 | $170,300.00 | ||
| 1999 | $155,000.00 | ||
| 1998 | $127,900.00 | ||
| 1997 | $117,300.00 | ||
| 1996 | $117,300.00 | ||
| 1995 | $100,100.00 | ||
| 1994 | $98,100.00 | ||
| 1993 | $98,100.00 | ||
| 1992 | $147,300.00 |



