14 Leslie Rd Newton, MA 02466-2914
Visit 14 Leslie Rd in Newton, MA, 02466-2914
This profile includes property assessor report information, real estate records and a complete residency history.
We have include the current owner’s name and phone number to help you find the right person and learn more.
PROPERTY OVERVIEW
Type: Single Family
3 beds1.5 baths3,196 sqft
3 beds1.5 baths3,196 sqft
Facts
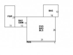
Built in 1940Foundation type: Concrete Property use: Single FamilyRoof type: Hip Lot size: 12,135 sqftRoof material: Asphalt Shingl Effective area: 3,196 sqftHeat type: Forced Air-Duc Building type: ResidentialFuel type: Oil Rooms: 8Air conditioning: Central Bedrooms: 3Frontage: 100 feet Bathrooms: 1Basement area: 949 sqft Stories: 2Finished basement area: 806 sqft Exterior condition: AverageShed area: 96 sqft Exterior walls: Wood ShingleAttached garage area: 253 sqft Trim: Half Wall
Features
Kitchen quality: Above Average
Recent residents
Resident Name | Phone | More Info |
---|---|---|
Stephanie L Hirshberg, age 53 | (617) 795-1983 | Status: Last owner (from Aug 22, 2003 to now) |
Stephanie L Silver | (617) 795-1983 | |
Hong Wei | (617) 795-1983 | |
Philip M Hirshberg, age 56 | (617) 969-7095 | Status: Last owner (from Aug 22, 2003 to now) Occupation: Legal Professional Education: Graduate or professional degree |
Phillp Hirshberg | (617) 969-7095 | |
Stephanle Hirshberg | (617) 969-7095 | |
Beth A Romanelli | Status: Previous owner (from Aug 21, 1995 to Nov 01, 1995) |
|
Robin A Damato | Status: Previous owner (from Aug 21, 1995 to Nov 01, 1995) |
|
KOLKENBECK ROBERT FRANKLIN E | Status: Previous owner (from Oct 29, 1962) |
|
Robert E Kolkenbeck | (617) 527-5996 | Status: Previous owner (from Oct 29, 1962 to Aug 21, 1995) |
Marilyn L Kolkenbeck, age 98 | (617) 527-5996 | Status: Previous owner (from Oct 29, 1962 to Aug 22, 2003) Occupation: Sales Occupations Education: Bachelor's degree or higher |
Robt Kolkenbeck | (617) 527-5996 | |
Albert R Studer | Status: Previous owner (to Oct 29, 1962) |
|
Alice L Studer | Status: Previous owner (to Oct 29, 1962) |
Business records related to this address
Organization | Phone | More Info |
---|---|---|
Kolkenbeck Jewelry | Categories: Jewelry |
Historical businesses records
Organization | Phone | More Info |
---|---|---|
MARILYN KOLKENBECK ANTIQUES, INC | Business type: Domestic Profit Corporation Inactive: 19901231 |
Neighbors
Assessment history
Year | Tax | Assessment | Market |
---|---|---|---|
2016 | $813,300.00 | ||
2015 | $760,100.00 | ||
2014 | $723,900.00 | ||
2013 | $723,900.00 | ||
2012 | $723,900.00 | ||
2011 | $715,900.00 | ||
2010 | $730,500.00 | ||
2009 | $644,900.00 | ||
2008 | $644,900.00 | ||
2007 | $664,700.00 | ||
2006 | $645,300.00 | ||
2005 | $614,600.00 | ||
2004 | $572,700.00 | ||
2003 | $511,300.00 | ||
2002 | $511,300.00 | ||
2001 | $437,200.00 | ||
2000 | $399,300.00 | ||
1999 | $363,300.00 | ||
1998 | $324,500.00 | ||
1997 | $313,500.00 | ||
1996 | $298,600.00 | ||
1995 | $253,000.00 | ||
1994 | $253,000.00 | ||
1993 | $253,100.00 | ||
1992 | $277,800.00 |