1488 Commonwealth Ave Newton, MA 02465-2832
Visit 1488 Commonwealth Ave in Newton, MA, 02465-2832
This profile includes property assessor report information, real estate records and a complete residency history.
We have include the current owner’s name and phone number to help you find the right person and learn more.
Sold Mar 2021
$1,300,000
Market Activities
Mar 2021 - Apr 2021
PROPERTY OVERVIEW
Type: Single Family
4 beds2.5 baths5,021 sqft
4 beds2.5 baths5,021 sqft
Facts
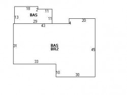
Built in 1950Trim: None Property use: Single FamilyFoundation type: Concrete Lot size: 15,695 sqftRoof type: Gable Effective area: 3,271 sqftRoof material: Asphalt Shingl Gross building area: 5,021 sqftHeat type: Hot Wtr Radiat Building type: ResidentialFuel type: Oil Rooms: 9Air conditioning: Central Bedrooms: 4Frontage: 100 feet Stories: 1Basement area: 2,333 sqft Exterior condition: AverageFinished basement area: 583 sqft Exterior walls: Brick VeneerBasement garages: 2
Recent residents
| Resident Name | Phone | More Info |
|---|---|---|
| Charles I Taylor | Status: Last owner (from Jan 21, 1953 to now) |
|
| Rose Taylor | Status: Last owner (from Jan 21, 1953 to now) |
|
| Felicita A Bossi | Status: Previous owner (to Jan 21, 1953) |
|
| John E Bossi | Status: Previous owner (to Jan 21, 1953) |
|
| Anne C Sullivan, age 88 | (617) 332-0873 | Status: Homeowner Occupation: Production Occupations Education: High school graduate or higher |
| Dani J Sullivan | (617) 332-0873 | |
| Daniel Sullivan, age 91 | Status: Homeowner Occupation: Production Occupations Education: High school graduate or higher |
|
| Sarah Elizabeth Sullivan, age 37 | (603) 762-6594 |
Neighbors
Assessment history
| Year | Tax | Assessment | Market |
|---|---|---|---|
| 2016 | $880,800.00 | ||
| 2015 | $823,200.00 | ||
| 2014 | $780,100.00 | ||
| 2013 | $780,100.00 | ||
| 2012 | $780,100.00 | ||
| 2011 | $781,300.00 | ||
| 2010 | $797,200.00 | ||
| 2009 | $813,500.00 | ||
| 2008 | $813,500.00 | ||
| 2007 | $857,000.00 | ||
| 2006 | $832,000.00 | ||
| 2005 | $792,400.00 | ||
| 2004 | $722,600.00 | ||
| 2003 | $645,200.00 | ||
| 2002 | $645,200.00 | ||
| 2001 | $543,000.00 | ||
| 2000 | $495,900.00 | ||
| 1999 | $451,200.00 | ||
| 1998 | $392,300.00 | ||
| 1997 | $373,600.00 | ||
| 1996 | $355,800.00 | ||
| 1995 | $370,800.00 | ||
| 1994 | $353,100.00 | ||
| 1993 | $353,100.00 | ||
| 1992 | $458,500.00 |



