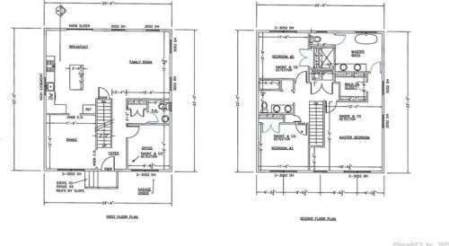
15 Grove St Huntington, CT 06484-4131
Visit 15 Grove St in Huntington, CT, 06484-4131
This profile includes property assessor report information, real estate records and a complete residency history.
We have include the current owner’s name and phone number to help you find the right person and learn more.
Sold Feb 2024
$550,000
Market Activities
Apr 2023 - Mar 2024
Apr 2023 - Mar 2024
