15 Nardone Rd Newton, MA 02459-2718
Visit 15 Nardone Rd in Newton, MA, 02459-2718
This profile includes property assessor report information, real estate records and a complete residency history.
We have include the current owner’s name and phone number to help you find the right person and learn more.
PROPERTY OVERVIEW
Type: Single Family
3 beds2.5 baths3,694 sqft
3 beds2.5 baths3,694 sqft
Facts
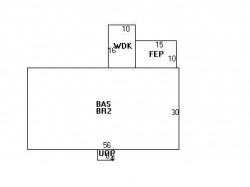
Built in 1955Roof type: Gable Property use: Single FamilyRoof material: Asphalt Shingl Lot size: 12,610 sqftHeat type: Hot Wtr Radiat Effective area: 2,434 sqftFuel type: Oil Gross building area: 3,694 sqftAir conditioning: Central Building type: ResidentialFrontage: 115 feet Rooms: 6Basement area: 1,680 sqft Bedrooms: 3Finished basement area: 420 sqft Stories: 1Porch area: 24 sqft Exterior condition: AverageEnclosed porch area: 150 sqft Exterior walls: Wood ShingleDeck area: 160 sqft Trim: Half WallBasement garages: 2 Foundation type: Concrete
Recent residents
| Resident Name | Phone | More Info |
|---|---|---|
| Michael B Swarttz, age 74 | (617) 527-8033 | Status: Last owner (from Aug 03, 1992 to now) Education: Associate degree or higher Email: |
| Carol P Glass, age 71 | (617) 558-1404 | Status: Last owner (from Aug 03, 1992 to now) Occupation: Clerical/White Collar Education: Associate degree or higher |
| Marian T Swartz | Status: Previous owner (from Nov 12, 1987 to Aug 03, 1992) |
|
| Louis Swartz | Status: Previous owner (from Nov 12, 1987 to Aug 03, 1992) |
|
| SWARTZ FAMILY TRUST S TR &BEN | Status: Previous owner (to Nov 12, 1987) |
|
| Aliza Brosh, age 78 | (617) 775-3540 | Status: Homeowner Occupation: Production Occupations Education: High school graduate or higher |
| Ran Brosh | (617) 775-3540 | Status: Homeowner Occupation: Production Occupations Education: High school graduate or higher |
| Eitan Brosh, age 78 | (617) 527-1934 | |
| Meir A Brosh, age 80 | (617) 527-1934 | Status: Homeowner Occupation: Production Occupations Education: High school graduate or higher |
| Mier A Brosh | (617) 527-1934 | |
| Ron Brosh, age 78 | (617) 875-3716 | Status: Homeowner Occupation: Production Occupations Education: High school graduate or higher |
| Nadav D Swarttz, age 34 | (617) 939-3630 | Status: Renter |
Neighbors
Assessment history
| Year | Tax | Assessment | Market |
|---|---|---|---|
| 2016 | $670,400.00 | ||
| 2015 | $615,600.00 | ||
| 2014 | $584,500.00 | ||
| 2013 | $584,500.00 | ||
| 2012 | $584,500.00 | ||
| 2011 | $585,400.00 | ||
| 2010 | $597,300.00 | ||
| 2009 | $609,500.00 | ||
| 2008 | $609,500.00 | ||
| 2007 | $635,800.00 | ||
| 2006 | $617,300.00 | ||
| 2005 | $587,900.00 | ||
| 2004 | $538,300.00 | ||
| 2003 | $480,600.00 | ||
| 2002 | $480,600.00 | ||
| 2001 | $407,900.00 | ||
| 2000 | $372,500.00 | ||
| 1999 | $338,900.00 | ||
| 1998 | $309,000.00 | ||
| 1997 | $291,500.00 | ||
| 1996 | $277,600.00 | ||
| 1995 | $285,900.00 | ||
| 1994 | $277,600.00 | ||
| 1993 | $277,600.00 | ||
| 1992 | $288,900.00 |



