18 Spiers Rd Newton, MA 02459-3725
Visit 18 Spiers Rd in Newton, MA, 02459-3725
This profile includes property assessor report information, real estate records and a complete residency history.
We have include the current owner’s name and phone number to help you find the right person and learn more.
Sold Oct 2023
$2,600,000
Market Activities
Nov 2022 - Oct 2023
Nov 2022 - Oct 2023
Nov 2022 - Oct 2023
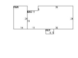
PROPERTY OVERVIEW
Type: Single Family
3 beds1 bath1,449 sqft
3 beds1 bath1,449 sqft
Facts
Built in 1948Foundation type: Slab Property use: Single FamilyRoof type: Gable Lot size: 7,055 sqftRoof material: Asphalt Shingl Effective area: 1,449 sqftHeat type: Hot Wtr Radiat Building type: ResidentialFuel type: Gas Rooms: 5Air conditioning: Central Bedrooms: 3Frontage: 90 feet Stories: 1Shed area: 48 sqft Exterior condition: AverageEnclosed porch area: 40 sqft Exterior walls: Wood ShingleAttached garage area: 336 sqft Trim: None
Features
Kitchen quality: Above AverageInterior condition: Good
Recent residents
| Resident Name | Phone | More Info |
|---|---|---|
| HAN SUNG NIM | Status: Last owner (from May 15, 2007 to now) |
|
| Ilgu G Kang, age 64 | (617) 332-5453 | Status: Last owner (from May 15, 2007 to now) |
| Sungnim Han, age 60 | (617) 332-5453 | Status: Homeowner Occupation: Professional/Technical Education: High school graduate or higher |
| Meredith J Lawlor, age 59 | Status: Previous owner (from Dec 07, 2005 to May 15, 2007) |
|
| Kevin B Lawlor, age 75 | (617) 969-0553 | Status: Previous owner (from Dec 07, 2005 to May 15, 2007) |
| Wendie M Levitan, age 54 | (617) 969-1357 | Status: Previous owner (to Dec 07, 2005) |
| Wendie M Trubow, age 54 | (617) 969-1357 | Status: Previous owner (from Apr 01, 2002 to Dec 07, 2005) Occupation: Executive, Administrative, and Managerial Occupations |
| 18 SPIERS ROAD NOMINEE TRUST /S TR | Status: Previous owner (to Apr 01, 2002) |
|
| 18 SPIERS ROAD NOMINEE TRUST /S TRS | Status: Previous owner (from Apr 14, 1992) |
|
| Ruth Tr Edwards, age 105 | (617) 969-2049 | Status: Previous owner (from Jan 08, 1970 to Apr 01, 2002) |
| Norman L Edwards | Status: Previous owner (from Jan 08, 1970 to Apr 14, 1992) |
|
| Gerald P Shaffet | Status: Previous owner (to Jan 08, 1970) |
|
| Isabel N Shaffet | Status: Previous owner (to Jan 08, 1970) |
|
| Byung J Kang, age 34 | (617) 750-1850 | Status: Renter Email: |
| Edward Levitan, age 50 | (617) 775-8191 | Status: Renter Occupation: Machine Operators, Assemblers, and Inspectors Occupations Education: Associate degree or higher |
Neighbors
Real estate transaction history
| Date | Event | Price | Source | Agents |
|---|---|---|---|---|
| 05/15/2007 | Sold | $415,000 | Public records | |
| 12/07/2005 | Sold | $487,000 | Public records | |
| 04/01/2002 | Sold | $342,000 | Public records |
Assessment history
| Year | Tax | Assessment | Market |
|---|---|---|---|
| 2016 | $417,600.00 | ||
| 2015 | $390,300.00 | ||
| 2014 | $370,100.00 | ||
| 2013 | $370,100.00 | ||
| 2012 | $370,100.00 | ||
| 2011 | $368,300.00 | ||
| 2010 | $375,800.00 | ||
| 2009 | $383,500.00 | ||
| 2008 | $383,500.00 | ||
| 2007 | $420,100.00 | ||
| 2006 | $356,700.00 | ||
| 2005 | $339,700.00 | ||
| 2004 | $278,900.00 | ||
| 2003 | $249,000.00 | ||
| 2002 | $249,000.00 | ||
| 2001 | $218,300.00 | ||
| 2000 | $199,400.00 | ||
| 1999 | $181,400.00 | ||
| 1998 | $173,000.00 | ||
| 1997 | $158,700.00 | ||
| 1996 | $158,700.00 | ||
| 1995 | $146,200.00 | ||
| 1994 | $143,300.00 | ||
| 1993 | $143,300.00 | ||
| 1992 | $161,000.00 |



