188 Dedham St Newton, MA 02461-2117
Visit 188 Dedham St in Newton, MA, 02461-2117
This profile includes property assessor report information, real estate records and a complete residency history.
We have include the current owner’s name and phone number to help you find the right person and learn more.
PROPERTY OVERVIEW
Type: Single Family
3 beds1.5 baths2,737 sqft
3 beds1.5 baths2,737 sqft
Facts
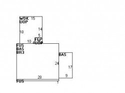
Built in 1950Foundation type: Concrete Property use: Single FamilyRoof type: Gable Lot size: 7,695 sqftRoof material: Asphalt Shingl Effective area: 2,401 sqftHeat type: Forced Air-Duc Gross building area: 2,737 sqftFuel type: Gas Building type: ResidentialAir conditioning: Central Rooms: 9Frontage: 72 feet Bedrooms: 3Basement area: 672 sqft Bathrooms: 1Finished basement area: 336 sqft Stories: 2Porch area: 270 sqft Exterior condition: AverageEnclosed porch area: 20 sqft Exterior walls: Vinyl SidingDeck area: 250 sqft Trim: Half Wall
Features
Kitchen quality: Above Average
Recent residents
| Resident Name | Phone | More Info |
|---|---|---|
| Kathy C Yee, age 76 | Status: Last owner (from Dec 02, 1977 to now) Occupation: Clerical/White Collar Education: Associate degree or higher |
|
| Winston E Yee, age 84 | (617) 332-5030 | Status: Last owner (from Dec 02, 1977 to now) Occupation: Retired Education: Graduate or professional degree |
| Harriet Datz | Status: Previous owner (to Dec 02, 1977) |
|
| Garrett J Yee, age 76 | ||
| Laura J Yee, age 53 |
Neighbors
Assessment history
| Year | Tax | Assessment | Market |
|---|---|---|---|
| 2016 | $512,300.00 | ||
| 2015 | $478,800.00 | ||
| 2014 | $458,800.00 | ||
| 2013 | $458,800.00 | ||
| 2012 | $458,800.00 | ||
| 2011 | $457,500.00 | ||
| 2010 | $466,800.00 | ||
| 2009 | $476,300.00 | ||
| 2008 | $476,300.00 | ||
| 2007 | $441,500.00 | ||
| 2006 | $428,600.00 | ||
| 2005 | $408,200.00 | ||
| 2004 | $379,900.00 | ||
| 2003 | $339,200.00 | ||
| 2002 | $339,200.00 | ||
| 2001 | $290,300.00 | ||
| 2000 | $265,100.00 | ||
| 1999 | $241,200.00 | ||
| 1998 | $242,200.00 | ||
| 1997 | $228,500.00 | ||
| 1996 | $217,600.00 | ||
| 1995 | $215,100.00 | ||
| 1994 | $213,000.00 | ||
| 1993 | $213,000.00 | ||
| 1992 | $223,000.00 |



