20 Grant St Newton, MA 02465-1508
Visit 20 Grant St in Newton, MA, 02465-1508
This profile includes property assessor report information, real estate records and a complete residency history.
We have include the current owner’s name and phone number to help you find the right person and learn more.
PROPERTY OVERVIEW
Type: Single Family
2 beds1.5 baths2,679 sqft
2 beds1.5 baths2,679 sqft
Facts
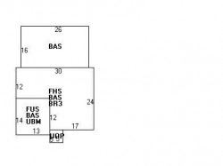
Built in 1950Trim: Full Wall Property use: Single FamilyFoundation type: Concrete Lot size: 8,131 sqftRoof type: Gable Effective area: 2,115 sqftRoof material: Asphalt Shingl Gross building area: 2,679 sqftHeat type: Forced Air-Duc Building type: ResidentialFuel type: Gas Rooms: 7Air conditioning: None Bedrooms: 2Frontage: 90 feet Bathrooms: 1Basement area: 746 sqft Stories: 1.5Finished basement area: 282 sqft Exterior condition: AverageShed area: 132 sqft Exterior walls: Vinyl SidingPorch area: 25 sqft
Features
Kitchen quality: Above Average
Recent residents
Resident Name | Phone | More Info |
---|---|---|
B Kielty | (617) 244-3346 | |
M Kielty | (617) 244-3346 | |
Margaret R Kielty, age 57 | Status: Homeowner Occupation: Building and Grounds Cleaning and Maintenance Occupations Education: Associate degree or higher |
|
Megan Kielty, age 37 | (617) 527-7203 | Status: Homeowner |
Michelina L Kielty, age 71 | (617) 527-7203 | Status: Homeowner Occupation: Professional/Technical Education: High school graduate or higher |
Robert W Kielty, age 71 | (617) 527-7203 | Status: Homeowner Occupation: Professional/Technical Education: High school graduate or higher |
David Ian Salter, age 59 | (310) 395-8678 | |
Susan P Salter, age 89 | (617) 965-3296 |
Business records related to this address
Organization | Phone | More Info |
---|---|---|
KIELTY MEDICAL, INC | Business type: Domestic Profit Corporation |
Neighbors
52 Grant St
Y Babakhan
Y Babakhan
Assessment history
Year | Tax | Assessment | Market |
---|---|---|---|
2016 | $528,900.00 | ||
2015 | $494,300.00 | ||
2014 | $469,800.00 | ||
2013 | $469,800.00 | ||
2012 | $469,800.00 | ||
2011 | $477,800.00 | ||
2010 | $487,600.00 | ||
2009 | $497,500.00 | ||
2008 | $497,500.00 | ||
2007 | $470,500.00 | ||
2006 | $456,800.00 | ||
2005 | $435,000.00 | ||
2004 | $389,500.00 | ||
2003 | $344,900.00 | ||
2002 | $315,800.00 | ||
2001 | $271,000.00 | ||
2000 | $247,500.00 | ||
1999 | $225,200.00 | ||
1998 | $206,000.00 | ||
1997 | $195,300.00 | ||
1996 | $186,000.00 | ||
1995 | $174,100.00 | ||
1994 | $174,100.00 | ||
1993 | $172,400.00 | ||
1992 | $179,600.00 |