241 Walnut St Newton, MA 02460-1626
Visit 241 Walnut St in Newton, MA, 02460-1626
This profile includes property assessor report information, real estate records and a complete residency history.
We have include the current owner’s name and phone number to help you find the right person and learn more.
Market Activities
                    Apr 2016 - Aug 2016
                    
                
                
                    241 Walnut St 
                    
                        
                            
                    
                    
            Price history :
                            
                        - 1 bed
- 1 bath
Excellent Sunny Top Floor 1BR Apartment with Utilities Included! Sunny 1BR Apartment with...
PROPERTY OVERVIEW
Type: General Office Bldg.
1 bed1 bathLot: 7,794 sqft
                1 bed1 bathLot: 7,794 sqft
Facts
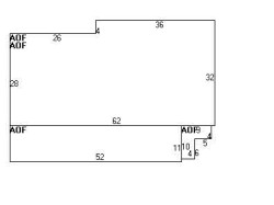
                        Built in 1975Stories: 2                        Property use: General Office Bldg.Heat type: Forced Air-Duc                        Lot size: 7,794 sqftFuel type: Typical                        Building type: CommercialAir conditioning: Central                        Rooms: 4Frontage: 105 feet                    
                Recent residents
| Resident Name | Phone | More Info | 
|---|---|---|
| Jack J Antaramian | Status: Last owner (from Aug 25, 1982 to now) | |
| Eliot Lappen | Status: Previous owner (to Aug 25, 1982) | |
| SCIPIONES INC | Status: Previous owner (from Dec 30, 1964) | |
| James A Johnson Jr | Status: Previous owner (from May 31, 1961 to Dec 30, 1964) | |
| Dorothy F Johnson | Status: Previous owner (from May 31, 1961 to Dec 30, 1964) | |
| SACONY-VACUUM OIL COMPANY INC | Status: Previous owner (to May 31, 1961) | |
| SOCONY MOBIL OIL COMPANY INC | Status: Previous owner (to May 31, 1961) | |
| Marc Ferman | 
Business records related to this address
| Organization | Phone | More Info | 
|---|---|---|
| BE GLAMOROUS SPA, LLC | Business type: Domestic Limited Liability Company (LLC) | |
| Giroux Brothers Martial Arts | (617) 641-2992 | Categories: Martial Arts Instruction Industry: Fitness Center Site: | 
| J&M REALTY MANAGEMENT, LLC | Business type: Domestic Limited Liability Company (LLC) | 
Historical businesses records
| Organization | Phone | More Info | 
|---|---|---|
| Eastern Advertising | (617) 965-0222 | Categories: Advertising Agencies & Consultants Industry: Advertising Agency Business type: Corporation - Foreign | 
| NEWTON COPY SHOP, INC | Business type: Domestic Profit Corporation Inactive: 20070531 | |
| OAK PARK CONSERVATION ASSOCIATION, INC | Business type: Nonprofit Corporation Inactive: 19861117 | 
Neighbors
Assessment history
| Year | Tax | Assessment | Market | 
|---|---|---|---|
| 2016 | $950,200.00 | ||
| 2015 | $950,200.00 | ||
| 2014 | $897,100.00 | ||
| 2013 | $897,100.00 | ||
| 2012 | $897,100.00 | ||
| 2011 | $936,900.00 | ||
| 2010 | $936,900.00 | ||
| 2009 | $936,900.00 | ||
| 2008 | $936,900.00 | ||
| 2007 | $903,500.00 | ||
| 2006 | $903,500.00 | ||
| 2005 | $619,500.00 | ||
| 2004 | $587,300.00 | ||
| 2003 | $587,300.00 | ||
| 2002 | $587,300.00 | ||
| 2001 | $502,100.00 | ||
| 2000 | $502,100.00 | ||
| 1999 | $478,200.00 | ||
| 1998 | $372,300.00 | ||
| 1997 | $372,300.00 | ||
| 1996 | $372,300.00 | ||
| 1995 | $372,400.00 | ||
| 1994 | $372,400.00 | ||
| 1993 | $372,400.00 | ||
| 1992 | $514,000.00 | 



