25 Bound Brook Rd Newton, MA 02461-2014
Visit 25 Bound Brook Rd in Newton, MA, 02461-2014
This profile includes property assessor report information, real estate records and a complete residency history.
We have include the current owner’s name and phone number to help you find the right person and learn more.
PROPERTY OVERVIEW
Type: Single Family
3 beds2.5 baths3,800 sqft
3 beds2.5 baths3,800 sqft
Facts
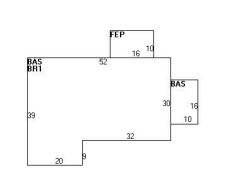
Built in 1953Foundation type: Concrete Property use: Single FamilyRoof type: Gable Lot size: 23,750 sqftRoof material: Asphalt Shingl Effective area: 2,634 sqftHeat type: Hot Wtr Radiat Gross building area: 3,800 sqftFuel type: Oil Building type: ResidentialAir conditioning: Central Rooms: 7Frontage: 100 feet Bedrooms: 3Basement area: 1,740 sqft Exterior condition: AverageFinished basement area: 574 sqft Exterior walls: Vinyl SidingEnclosed porch area: 160 sqft Trim: Half WallBasement garages: 2
Features
Kitchen quality: Below Average
Recent residents
| Resident Name | Phone | More Info |
|---|---|---|
| Jord Rittenberg | (617) 964-7178 | |
| Jordan L Rittenberg, age 80 | (617) 964-7178 | Status: Homeowner Occupation: Clerical/White Collar Education: Graduate or professional degree Email: |
| Paul J Rittenberg, age 43 | (617) 964-7178 | Status: Homeowner Occupation: Clerical/White Collar Education: High school graduate or higher |
| Sheila A Rittenberg, age 76 | (617) 964-7178 | Status: Homeowner Occupation: Clerical/White Collar Education: Graduate or professional degree Email: |
| Ted S Rittenberg, age 47 | (617) 964-7178 | Status: Homeowner Occupation: Clerical/White Collar Education: Associate degree or higher |
Business records related to this address
| Organization | Phone | More Info |
|---|---|---|
| Park Lane Enterprises LLC | Industry: Business Services Business type: Domestic Limited Liability Company (LLC) |
Neighbors
Assessment history
| Year | Tax | Assessment | Market |
|---|---|---|---|
| 2016 | $735,400.00 | ||
| 2015 | $687,300.00 | ||
| 2014 | $659,400.00 | ||
| 2013 | $659,400.00 | ||
| 2012 | $659,400.00 | ||
| 2011 | $667,300.00 | ||
| 2010 | $680,900.00 | ||
| 2009 | $694,800.00 | ||
| 2008 | $694,800.00 | ||
| 2007 | $725,800.00 | ||
| 2006 | $704,700.00 | ||
| 2005 | $671,100.00 | ||
| 2004 | $636,800.00 | ||
| 2003 | $568,600.00 | ||
| 2002 | $568,600.00 | ||
| 2001 | $454,300.00 | ||
| 2000 | $414,900.00 | ||
| 1999 | $377,500.00 | ||
| 1998 | $350,800.00 | ||
| 1997 | $350,800.00 | ||
| 1996 | $334,100.00 | ||
| 1995 | $311,800.00 | ||
| 1994 | $297,000.00 | ||
| 1993 | $297,000.00 | ||
| 1992 | $321,100.00 |



