274 Derby St Newton, MA 02465-1006
Visit 274 Derby St in Newton, MA, 02465-1006
This profile includes property assessor report information, real estate records and a complete residency history.
We have include the current owner’s name and phone number to help you find the right person and learn more.
PROPERTY OVERVIEW
Type: Single Family
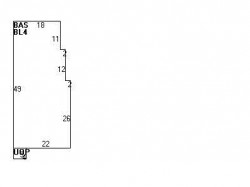
2 beds2 baths2,040 sqft
2 beds2 baths2,040 sqft
Facts
Built in 1926Exterior walls: Vinyl Siding Property use: Single FamilyTrim: None Lot size: 4,310 sqftFoundation type: Concrete Effective area: 1,788 sqftRoof type: Gable Gross building area: 2,040 sqftRoof material: Asphalt Shingl Building type: ResidentialHeat type: Hot Water Rooms: 5Fuel type: Gas Bedrooms: 2Frontage: 55 feet Stories: 1Finished basement area: 758 sqft Exterior condition: AveragePorch area: 20 sqft
Features
Kitchen quality: Above AverageInterior condition: Good
Recent residents
Resident Name | Phone | More Info |
---|---|---|
Dominico Butera | Status: Last owner (from Feb 05, 1973 to now) |
|
Rosa Butera, age 90 | (617) 875-8913 | Status: Last owner (from Feb 05, 1973 to now) Occupation: Construction and Extraction Occupations Education: Bachelor's degree or higher |
Thelma T Fregeau | Status: Previous owner (from Oct 17, 1961 to Feb 05, 1973) |
|
Alfred I Fregeau | Status: Previous owner (from Oct 17, 1961 to Feb 05, 1973) |
|
Leann S Lovell | Status: Previous owner (to Oct 17, 1961) |
|
Ronald E Lovell | Status: Previous owner (from Dec 30, 1960 to Oct 17, 1961) |
|
Eleanor Noonan | Status: Previous owner (from Dec 01, 1959 to Dec 30, 1960) |
|
Henry C Olsen Jr | Status: Previous owner (from Jul 30, 1954 to Dec 01, 1959) |
|
Cecelia A Olsen | Status: Previous owner (from Jul 30, 1954 to Dec 01, 1959) |
|
CURLEY THOMAS F EST | Status: Previous owner (to Jul 30, 1954) |
|
Barbara A Lutrey | Status: Previous owner (to Jul 30, 1954) |
|
D Butari, age 93 | ||
Domenico Butari, age 93 | Status: Renter Occupation: Machine Operators, Assemblers, and Inspectors Occupations |
|
Rosa Butari, age 90 | (617) 969-5572 | Status: Renter Occupation: Machine Operators, Assemblers, and Inspectors Occupations |
Dominic A Butera, age 93 | (617) 969-5572 | Status: Homeowner Occupation: Retired Education: High school graduate or higher |
Domenico Butera | (617) 785-0422 | Status: Homeowner Occupation: Construction and Extraction Occupations Education: Bachelor's degree or higher Email: |
Neighbors
286 Derby St
K O Shinnick
K O Shinnick
246 Derby St
F Joseph Tr Whalen
F Joseph Tr Whalen
Assessment history
Year | Tax | Assessment | Market |
---|---|---|---|
2016 | $476,500.00 | ||
2015 | $445,300.00 | ||
2014 | $420,400.00 | ||
2013 | $420,400.00 | ||
2012 | $420,400.00 | ||
2011 | $422,900.00 | ||
2010 | $431,500.00 | ||
2009 | $440,300.00 | ||
2008 | $440,300.00 | ||
2007 | $438,400.00 | ||
2006 | $425,600.00 | ||
2005 | $405,300.00 | ||
2004 | $366,000.00 | ||
2003 | $326,800.00 | ||
2002 | $326,800.00 | ||
2001 | $236,700.00 | ||
2000 | $216,200.00 | ||
1999 | $196,700.00 | ||
1998 | $196,500.00 | ||
1997 | $186,300.00 | ||
1996 | $177,400.00 | ||
1995 | $172,700.00 | ||
1994 | $172,700.00 | ||
1993 | $148,400.00 | ||
1992 | $158,100.00 |