28 Turner Ter Newton, MA 02460-1708
Visit 28 Turner Ter in Newton, MA, 02460-1708
This profile includes property assessor report information, real estate records and a complete residency history.
We have include the current owner’s name and phone number to help you find the right person and learn more.
PROPERTY OVERVIEW
Type: Single Family
3 beds1.5 baths2,519 sqft
3 beds1.5 baths2,519 sqft
Facts
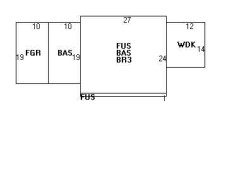
Built in 1930Foundation type: Concrete Property use: Single FamilyRoof type: Gable Lot size: 7,137 sqftRoof material: Asphalt Shingl Effective area: 2,195 sqftHeat type: Hot Wtr Radiat Gross building area: 2,519 sqftFuel type: Oil Building type: ResidentialAir conditioning: Unit/AC Rooms: 8Frontage: 60 feet Bedrooms: 3Basement area: 648 sqft Bathrooms: 1Finished basement area: 324 sqft Stories: 2Shed area: 60 sqft Exterior condition: AverageDeck area: 168 sqft Exterior walls: ClapboardAttached garage area: 190 sqft Trim: Half Wall
Features
Kitchen quality: Below AverageInterior condition: Good
Recent residents
| Resident Name | Phone | More Info |
|---|---|---|
| Sean T Obrien, age 70 | (617) 967-5039 | Status: Last owner (from Oct 03, 1989 to now) Occupation: Medical Professional Education: Graduate or professional degree |
| Lucia D Obrien, age 63 | (617) 967-5039 | Status: Last owner (from Oct 03, 1989 to now) |
| John C Obrien, age 42 | (617) 967-5039 | Status: Renter |
| Rosa M Obrien, age 44 | (617) 967-5039 | Status: Homeowner Occupation: Homemaker Education: Associate degree or higher Email: |
| Cecily M Sostek | Status: Previous owner (from Aug 16, 1956 to Oct 03, 1989) |
|
| Alan B Sostek | Status: Previous owner (from Aug 16, 1956 to Oct 03, 1989) |
|
| Bernard Gordon | Status: Previous owner (to Aug 16, 1956) |
|
| Margaret C Gordon | Status: Previous owner (to Aug 16, 1956) |
|
| R Brien |
Neighbors
7 Turner Ter
F Astrauskas
F Astrauskas
Real estate transaction history
| Date | Event | Price | Source | Agents |
|---|---|---|---|---|
| 10/03/1989 | Sold | $230,000 | Public records |
Assessment history
| Year | Tax | Assessment | Market |
|---|---|---|---|
| 2016 | $562,600.00 | ||
| 2015 | $525,800.00 | ||
| 2014 | $500,000.00 | ||
| 2013 | $500,000.00 | ||
| 2012 | $500,000.00 | ||
| 2011 | $497,600.00 | ||
| 2010 | $507,800.00 | ||
| 2009 | $518,200.00 | ||
| 2008 | $518,200.00 | ||
| 2007 | $552,500.00 | ||
| 2006 | $536,400.00 | ||
| 2005 | $510,900.00 | ||
| 2004 | $486,900.00 | ||
| 2003 | $434,700.00 | ||
| 2002 | $434,700.00 | ||
| 2001 | $335,000.00 | ||
| 2000 | $305,900.00 | ||
| 1999 | $278,300.00 | ||
| 1998 | $257,800.00 | ||
| 1997 | $243,200.00 | ||
| 1996 | $231,600.00 | ||
| 1995 | $197,000.00 | ||
| 1994 | $197,000.00 | ||
| 1993 | $197,000.00 | ||
| 1992 | $196,100.00 |


