33 Mosman St Newton, MA 02465-1303
Visit 33 Mosman St in Newton, MA, 02465-1303
This profile includes property assessor report information, real estate records and a complete residency history.
We have include the current owner’s name and phone number to help you find the right person and learn more.
PROPERTY OVERVIEW
Type: Single Family
3 beds2 bathsLot: 8,145 sqft
3 beds2 bathsLot: 8,145 sqft
Facts
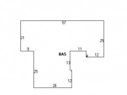
Built in 1950Trim: Half Wall Property use: Single FamilyFoundation type: Slab Lot size: 8,145 sqftRoof type: Gable Building type: ResidentialRoof material: Asphalt Shingl Rooms: 7Heat type: Hot Water Bedrooms: 3Fuel type: Oil Bathrooms: 2Air conditioning: Unit/AC Exterior condition: AverageFrontage: 77 feet Exterior walls: Vinyl SidingShed area: 140 sqft
Features
Kitchen quality: Below Average
Recent residents
| Resident Name | Phone | More Info |
|---|---|---|
| COCHRANE JEAN PASSAVANT TR | Status: Last owner (from Nov 27, 2012 to now) |
|
| JEAN PASSAVANT 2002 REVOCABLE TRUST | Status: Last owner (from Nov 27, 2012 to now) |
|
| Ia Tr Cochrane | Status: Last owner (from Nov 27, 2012 to now) |
|
| Ian Cochrane, age 87 | Status: Previous owner (to Nov 27, 2012) Occupation: Production Occupations Education: High school graduate or higher Email: |
|
| Jean P Cochrane, age 84 | (617) 244-6190 | Status: Previous owner (to Nov 27, 2012) Email: |
| Jean Passavant, age 84 | (617) 244-6190 | Status: Previous owner (from Jul 17, 1987 to Nov 27, 2012) Occupation: Clerical/White Collar |
| Michael Useem | Status: Previous owner (from Jun 26, 1974 to Jul 17, 1987) |
|
| Elizabeth Useem | Status: Previous owner (from Jun 26, 1974 to Jul 17, 1987) |
|
| Stephen C Berger | Status: Previous owner (from May 10, 1963 to Jun 26, 1974) |
|
| Constance R Berger | Status: Previous owner (from May 10, 1963 to Jun 26, 1974) |
|
| David Rubin | Status: Previous owner (to May 10, 1963) |
|
| Peggy A Rubin | Status: Previous owner (to May 10, 1963) |
|
| Francis Passavant |
Neighbors
Assessment history
| Year | Tax | Assessment | Market |
|---|---|---|---|
| 2016 | $520,800.00 | ||
| 2015 | $486,700.00 | ||
| 2014 | $458,900.00 | ||
| 2013 | $458,900.00 | ||
| 2012 | $456,900.00 | ||
| 2011 | $456,700.00 | ||
| 2010 | $466,000.00 | ||
| 2009 | $475,500.00 | ||
| 2008 | $475,500.00 | ||
| 2007 | $499,000.00 | ||
| 2006 | $484,500.00 | ||
| 2005 | $461,400.00 | ||
| 2004 | $418,300.00 | ||
| 2003 | $406,500.00 | ||
| 2002 | $374,000.00 | ||
| 2001 | $313,800.00 | ||
| 2000 | $286,600.00 | ||
| 1999 | $260,800.00 | ||
| 1998 | $232,000.00 | ||
| 1997 | $218,900.00 | ||
| 1996 | $208,500.00 | ||
| 1995 | $204,200.00 | ||
| 1994 | $200,200.00 | ||
| 1993 | $200,200.00 | ||
| 1992 | $212,800.00 |



