33 Stanley Rd Newton, MA 02468-2337
Visit 33 Stanley Rd in Newton, MA, 02468-2337
This profile includes property assessor report information, real estate records and a complete residency history.
We have include the current owner’s name and phone number to help you find the right person and learn more.
Building Permits
Aug 19, 2013
Description: New kitchen cabinets and new rear entry from kitchen to deck
- Valuation: $2,500,000
- Fee: $465.00 paid to City of Newton, Massachusetts
- Parcel #: 54005 0015
- Permit #: 13080610
Jul 10, 2012
Description: Insullation for the attic, open blow cellulose no structural work
- Contractor: Bobs Insulation
- Valuation: $485,600
- Fee: $90.32 paid to City of Newton, Massachusetts
- Parcel #: 54005 0015
- Permit #: 12070322
PROPERTY OVERVIEW
Type: Single Family
3 beds3 baths4,084 sqft
3 beds3 baths4,084 sqft
Facts
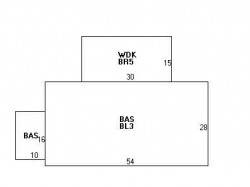
Built in 1960Trim: Full Wall Property use: Single FamilyFoundation type: Concrete Lot size: 12,860 sqftRoof type: Hip Effective area: 3,328 sqftRoof material: Asphalt Shingl Gross building area: 4,084 sqftHeat type: Hot Wtr Radiat Building type: ResidentialFuel type: Oil Rooms: 7Air conditioning: Central Bedrooms: 3Frontage: 136 feet Bathrooms: 3Basement area: 1,962 sqft Stories: 1Finished basement area: 1,206 sqft Exterior condition: AverageDeck area: 450 sqft Exterior walls: Aluminum SidngBasement garages: 2
Features
Kitchen quality: Above Average
Recent residents
Resident Name | Phone | More Info |
---|---|---|
Michael Vahey, age 57 | Status: Last owner (from Nov 13, 2008 to now) |
|
PANG MOK JIANG | Status: Last owner (from Nov 13, 2008 to now) |
|
HUANG KUO TAI | Status: Previous owner (to Nov 13, 2008) |
|
HUANG CHIA CHEN | Status: Previous owner (to Nov 13, 2008) |
|
HUANG CHIA CHEN &AL | Status: Previous owner (from Dec 27, 2000) |
|
HUANG KUO TAI &UX | Status: Previous owner (from Dec 27, 2000) |
|
Inna Kitzis | Status: Previous owner (to Dec 27, 2000) |
|
Naum I Kitzis, age 87 | (617) 527-7035 | Status: Previous owner (to Dec 27, 2000) |
Steven A Rosendorf | Status: Previous owner (from Sep 30, 1980) |
|
Chester Randall | Status: Previous owner (to Sep 30, 1980) |
|
C Chow, age 53 | ||
Chia C Chow, age 54 | ||
Chung S Chow, age 84 | ||
Kuotai Huang, age 54 | ||
Mok J Pang, age 55 | Status: Renter Education: Graduate or professional degree |
|
Emily Vahey, age 91 |
Business records related to this address
Organization | Phone | More Info |
---|---|---|
27-29 ELLIOT STREET LLC | Business type: Domestic Limited Liability Company (LLC) |
|
TECHDIGS, INC | Specialties: Business Consulting, Interim Executive Accounting Services, Accounting Process Improvement, Internal Controls, Audit, and Sarbanes Oxley Compliance, IT Systems Implementation and I... Industry: Accounting, Nonclassifiable Establishments Business type: Foreign Corporation Site: |
Neighbors
Assessment history
Year | Tax | Assessment | Market |
---|---|---|---|
2016 | $813,900.00 | ||
2015 | $760,700.00 | ||
2014 | $700,800.00 | ||
2013 | $769,100.00 | ||
2012 | $769,100.00 | ||
2011 | $774,400.00 | ||
2010 | $790,200.00 | ||
2009 | $806,300.00 | ||
2008 | $806,300.00 | ||
2007 | $766,600.00 | ||
2006 | $744,300.00 | ||
2005 | $708,900.00 | ||
2004 | $672,000.00 | ||
2003 | $600,000.00 | ||
2002 | $600,000.00 | ||
2001 | $511,700.00 | ||
2000 | $467,300.00 | ||
1999 | $425,200.00 | ||
1998 | $387,000.00 | ||
1997 | $387,000.00 | ||
1996 | $368,600.00 | ||
1995 | $367,600.00 | ||
1994 | $350,100.00 | ||
1993 | $350,100.00 | ||
1992 | $384,800.00 |