44 Rest View Ln Wells, ME 04090-5310
Visit 44 Rest View Ln in Wells, ME, 04090-5310
This profile includes property assessor report information, real estate records and a complete residency history.
We have include the current owner’s name and phone number to help you find the right person and learn more.
Sold Dec 2022
$485,000
Market Activities
Nov 2022 - May 2023
Nov 2022 - May 2023
Nov 2022 - May 2023
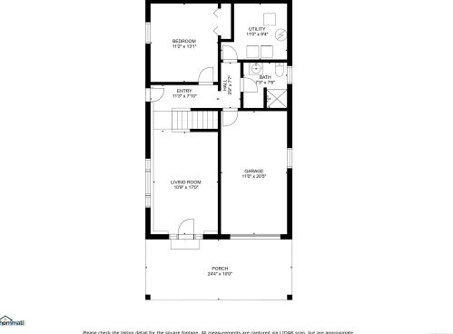
PROPERTY OVERVIEW
Type: Single-Family Home
3 beds2 bathsLot: 5,000 sqft
3 beds2 bathsLot: 5,000 sqft
Facts
Built in 2006Bedrooms: 3 Lot size: 5,000 sqftBathrooms: 2
Recent residents
| Resident Name | Phone | More Info |
|---|---|---|
| John Hayden | Status: Renter Occupation: Handlers, Equipment Cleaners, Helpers, and Laborers Occupations Education: Associate degree or higher |
|
| Rosemary A Hayden, age 87 | (207) 646-8057 | Status: Homeowner Education: High school graduate or higher |
Neighbors
78 Rest View Ln
M Loftus
M Loftus
41 Rest View Ln
C Lessardbolz
C Lessardbolz
