47 Williston Rd Newton, MA 02466-2222
Visit 47 Williston Rd in Newton, MA, 02466-2222
This profile includes property assessor report information, real estate records and a complete residency history.
We have include the current owner’s name and phone number to help you find the right person and learn more.
PROPERTY OVERVIEW
Type: Single Family
4 beds2.5 baths2,898 sqft
4 beds2.5 baths2,898 sqft
Facts
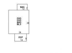
Built in 1913Trim: None Property use: Single FamilyFoundation type: Concrete Lot size: 5,023 sqftRoof type: Hip Effective area: 2,226 sqftRoof material: Asphalt Shingl Gross building area: 2,898 sqftHeat type: Hot Water Building type: ResidentialFuel type: Gas Rooms: 8Frontage: 60 feet Bedrooms: 4Basement area: 672 sqft Stories: 2Finished basement area: 336 sqft Exterior condition: AverageEnclosed porch area: 126 sqft Exterior walls: Wood Shingle
Features
Bath quality: Above AverageInterior condition: Good
Recent residents
| Resident Name | Phone | More Info |
|---|---|---|
| Bradford E White, age 68 | (617) 965-6632 | Status: Last owner (from Jul 26, 2010 to now) |
| Susan G Katcher, age 65 | Status: Last owner (from Jul 26, 2010 to now) Occupation: Production Occupations Education: High school graduate or higher |
|
| Mark I Fogel, age 70 | (617) 244-7396 | Status: Previous owner (to Jul 26, 2010) |
| Susan B Nebel, age 71 | (617) 244-7396 | Status: Previous owner (to Jul 26, 2010) |
| John E Ahern | ||
| Gudrun Nebel | Email: |
|
| Mark Nebel | ||
| Becky Sogel, age 38 | Status: Homeowner Occupation: Professional/Technical Education: Associate degree or higher |
|
| Mark Sogel, age 70 | Status: Homeowner |
Neighbors
Assessment history
| Year | Tax | Assessment | Market |
|---|---|---|---|
| 2016 | $658,800.00 | ||
| 2015 | $615,700.00 | ||
| 2014 | $582,600.00 | ||
| 2013 | $582,600.00 | ||
| 2012 | $582,600.00 | ||
| 2011 | $577,500.00 | ||
| 2010 | $546,800.00 | ||
| 2009 | $558,000.00 | ||
| 2008 | $558,000.00 | ||
| 2007 | $567,900.00 | ||
| 2006 | $551,400.00 | ||
| 2005 | $525,100.00 | ||
| 2004 | $488,700.00 | ||
| 2003 | $436,300.00 | ||
| 2002 | $436,300.00 | ||
| 2001 | $349,100.00 | ||
| 2000 | $318,800.00 | ||
| 1999 | $290,100.00 | ||
| 1998 | $239,500.00 | ||
| 1997 | $231,400.00 | ||
| 1996 | $220,400.00 | ||
| 1995 | $219,900.00 | ||
| 1994 | $206,400.00 | ||
| 1993 | $206,400.00 | ||
| 1992 | $216,900.00 |



