48 Maynard St Newton, MA 02465
Visit 48 Maynard St in Newton, MA, 02465
This profile includes property assessor report information, real estate records and a complete residency history.
We have include the current owner’s name and phone number to help you find the right person and learn more.
For Sale
$2,499,000
Market Activities
Feb 2024 - present
Mar 2021 - Apr 2021
PROPERTY OVERVIEW
Type: Single Family
3 beds1 bath3,079 sqft
3 beds1 bath3,079 sqft
Facts
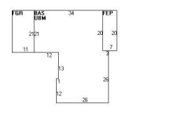
Built in 1953Trim: None Property use: Single FamilyFoundation type: Concrete Lot size: 8,780 sqftRoof type: Gable Effective area: 3,079 sqftRoof material: Asphalt Shingl Building type: ResidentialHeat type: Steam Rooms: 6Fuel type: Oil Bedrooms: 3Frontage: 80 feet Stories: 1Basement area: 1,354 sqft Exterior condition: AverageEnclosed porch area: 140 sqft Exterior walls: Vinyl SidingAttached garage area: 231 sqft
Features
Kitchen quality: Above AverageInterior condition: Good
Recent residents
| Resident Name | Phone | More Info |
|---|---|---|
| LEONIN PARALLMAN | Status: Last owner (from May 30, 1974 to now) |
|
| Flavio A Leonin, age 96 | (617) 244-2410 | Status: Last owner (from May 30, 1974 to now) Occupation: Production Occupations Education: Associate degree or higher |
| Paraluman S Leonin, age 93 | (617) 244-2410 | Status: Homeowner Occupation: Medical Professional Education: Graduate or professional degree |
| Mae Reiselman | Status: Previous owner (from Dec 05, 1967 to May 30, 1974) |
|
| David Reiselman | Status: Previous owner (from Aug 24, 1953 to May 30, 1974) |
|
| CAMPANELLI HOMES INC | Status: Previous owner (to Aug 24, 1953) |
|
| Kay K Chang, age 66 | ||
| Flavios Leonin, age 63 | ||
| P S Leonin, age 93 |
Neighbors
Assessment history
| Year | Tax | Assessment | Market |
|---|---|---|---|
| 2016 | $549,400.00 | ||
| 2015 | $513,500.00 | ||
| 2014 | $482,700.00 | ||
| 2013 | $482,700.00 | ||
| 2012 | $482,700.00 | ||
| 2011 | $474,900.00 | ||
| 2010 | $484,600.00 | ||
| 2009 | $494,500.00 | ||
| 2008 | $494,500.00 | ||
| 2007 | $496,900.00 | ||
| 2006 | $482,400.00 | ||
| 2005 | $459,400.00 | ||
| 2004 | $420,200.00 | ||
| 2003 | $375,200.00 | ||
| 2002 | $375,200.00 | ||
| 2001 | $299,900.00 | ||
| 2000 | $273,900.00 | ||
| 1999 | $249,200.00 | ||
| 1998 | $219,800.00 | ||
| 1997 | $207,400.00 | ||
| 1996 | $197,500.00 | ||
| 1995 | $176,400.00 | ||
| 1994 | $176,400.00 | ||
| 1993 | $176,400.00 | ||
| 1992 | $194,900.00 |



