59 Fuller Ter Newton, MA 02465-1205
Visit 59 Fuller Ter in Newton, MA, 02465-1205
This profile includes property assessor report information, real estate records and a complete residency history.
We have include the current owner’s name and phone number to help you find the right person and learn more.
PROPERTY OVERVIEW
Type: Single Family
3 beds1 bath2,544 sqft
3 beds1 bath2,544 sqft
Facts
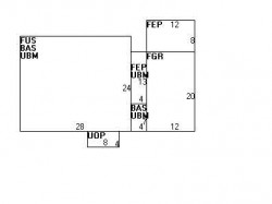
Built in 1950Trim: None Property use: Single FamilyFoundation type: Concrete Lot size: 7,008 sqftRoof type: Gable Effective area: 2,544 sqftRoof material: Asphalt Shingl Building type: ResidentialHeat type: Hot Wtr Radiat Rooms: 6Fuel type: Oil Bedrooms: 3Frontage: 70 feet Bathrooms: 1Basement area: 752 sqft Stories: 2Porch area: 32 sqft Exterior condition: AverageEnclosed porch area: 148 sqft Exterior walls: Vinyl SidingAttached garage area: 240 sqft
Features
Kitchen quality: Above Average
Recent residents
| Resident Name | Phone | More Info |
|---|---|---|
| BRODIE ERIC LEE | Status: Last owner (from Feb 15, 2007 to now) |
|
| BRODIE SEEMA MALIK | Status: Last owner (from Feb 15, 2007 to now) |
|
| Eleanor F Mooney, age 109 | (617) 332-0626 | Status: Previous owner (to Feb 15, 2007) |
| Francis X Mooney, age 70 | (617) 332-0626 | |
| Robert Mooney | (617) 332-0626 | |
| Eric Lee Brodie | (732) 684-0872 | |
| Seema M Brodie, age 53 | (617) 527-0233 | Status: Homeowner Occupation: Professional/Technical Education: Graduate or professional degree |
Business records related to this address
| Organization | Phone | More Info |
|---|---|---|
| BIKEBUS, LLC | Business type: Domestic Limited Liability Company (LLC) |
|
| GO ACTIVATE, INC | Business type: Nonprofit Corporation |
Neighbors
Real estate transaction history
| Date | Event | Price | Source | Agents |
|---|---|---|---|---|
| 02/15/2007 | Sold | $515,000 | Public records |
Assessment history
| Year | Tax | Assessment | Market |
|---|---|---|---|
| 2016 | $524,300.00 | ||
| 2015 | $490,000.00 | ||
| 2014 | $467,000.00 | ||
| 2013 | $467,000.00 | ||
| 2012 | $467,000.00 | ||
| 2011 | $462,300.00 | ||
| 2010 | $459,800.00 | ||
| 2009 | $469,200.00 | ||
| 2008 | $469,200.00 | ||
| 2007 | $484,100.00 | ||
| 2006 | $470,000.00 | ||
| 2005 | $447,600.00 | ||
| 2004 | $411,200.00 | ||
| 2003 | $367,100.00 | ||
| 2002 | $367,100.00 | ||
| 2001 | $313,700.00 | ||
| 2000 | $286,500.00 | ||
| 1999 | $260,700.00 | ||
| 1998 | $235,900.00 | ||
| 1997 | $222,500.00 | ||
| 1996 | $211,900.00 | ||
| 1995 | $188,500.00 | ||
| 1994 | $188,500.00 | ||
| 1993 | $188,500.00 | ||
| 1992 | $196,100.00 |



