59 Quinobequin Rd Newton, MA 02462
Visit 59 Quinobequin Rd in Newton, MA, 02462
This profile includes property assessor report information, real estate records and a complete residency history.
We have include the current owner’s name and phone number to help you find the right person and learn more.
Building Permits
Jul 20, 2015
Description: Remove partition between kitchen and dining room, install (2) 9 1/2" lvl's with support posts. structural aff. due to rough inspection
- Contractor: J W Connolly Co
- Valuation: $250,000
- Fee: $50.00 paid to City of Newton, Massachusetts
- Parcel #: 42002 0009
- Permit #: 15070812
Apr 29, 2011
Description: Strip and re-roof with new asphalt shingles. no structural work
- Contractor: O'Lyn Contractors, Inc.
- Valuation: $800,000
- Fee: $148.80 paid to City of Newton, Massachusetts
- Parcel #: 42002 0009
- Permit #: 11040695
PROPERTY OVERVIEW
Type: Single Family
3 beds1.5 baths2,644 sqft
3 beds1.5 baths2,644 sqft
Facts
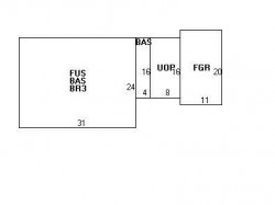
Built in 1952Foundation type: Concrete Property use: Single FamilyRoof type: Gable Lot size: 13,029 sqftRoof material: Asphalt Shingl Effective area: 2,272 sqftHeat type: Steam Gross building area: 2,644 sqftFuel type: Gas Building type: ResidentialAir conditioning: None Rooms: 6Frontage: 110 feet Bedrooms: 3Basement area: 744 sqft Bathrooms: 1Finished basement area: 372 sqft Stories: 2Shed area: 70 sqft Exterior condition: AveragePorch area: 128 sqft Exterior walls: Vinyl SidingAttached garage area: 220 sqft Trim: Full Wall
Recent residents
Resident Name | Phone | More Info |
---|---|---|
Muralikrishna Vemula | Status: Last owner (from Jul 14, 2015 to now) |
|
Aparna D Singamsetty | Status: Last owner (from Jul 14, 2015 to now) |
|
DANIEL D ETKIN 1992 REVOCABLE TRUST | Status: Previous owner (to Jul 14, 2015) |
|
DANIEL D ETKIN 1992 REVOCABLE TRUST S TR | Status: Previous owner (from Oct 21, 1992) |
|
Daniel D Etkin, age 100 | (617) 969-4494 | Status: Previous owner (from Oct 21, 1992 to Jul 14, 2015) Occupation: Construction and Extraction Occupations Education: Graduate or professional degree Email: |
Edith F Etkin, age 97 | (617) 969-4494 | Status: Previous owner (to Oct 21, 1992) Occupation: Retired |
Dani D Etkin | (617) 969-4494 | |
Danl D Etkin, age 100 | (617) 969-4494 | Status: Homeowner Occupation: Retired |
Hillary Etkin, age 76 |
Neighbors
Assessment history
Year | Tax | Assessment | Market |
---|---|---|---|
2016 | $599,400.00 | ||
2015 | $560,200.00 | ||
2014 | $539,400.00 | ||
2013 | $539,400.00 | ||
2012 | $539,400.00 | ||
2011 | $542,000.00 | ||
2010 | $553,100.00 | ||
2009 | $564,400.00 | ||
2008 | $564,400.00 | ||
2007 | $586,400.00 | ||
2006 | $569,300.00 | ||
2005 | $542,200.00 | ||
2004 | $501,100.00 | ||
2003 | $447,400.00 | ||
2002 | $447,400.00 | ||
2001 | $359,700.00 | ||
2000 | $342,600.00 | ||
1999 | $311,700.00 | ||
1998 | $272,600.00 | ||
1997 | $258,400.00 | ||
1996 | $246,100.00 | ||
1995 | $210,600.00 | ||
1994 | $206,500.00 | ||
1993 | $206,500.00 | ||
1992 | $198,000.00 |