6 Ashmont Rd Newton, MA 02468-1202
Visit 6 Ashmont Rd in Newton, MA, 02468-1202
This profile includes property assessor report information, real estate records and a complete residency history.
We have include the current owner’s name and phone number to help you find the right person and learn more.
PROPERTY OVERVIEW
Type: Single Family
5 beds3 baths5,834 sqft
5 beds3 baths5,834 sqft
Facts
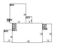
Built in 1917Foundation type: Brick/Fldstone Property use: Single FamilyRoof type: Gable Lot size: 13,025 sqftRoof material: Slate Effective area: 4,794 sqftHeat type: Hot Wtr Radiat Gross building area: 5,834 sqftFuel type: Gas Building type: ResidentialAir conditioning: Central Rooms: 10Fireplaces: 2 Bedrooms: 5Frontage: 110 feet Bathrooms: 3Basement area: 1,328 sqft Stories: 2.5Finished basement area: 520 sqft Exterior condition: AverageEnclosed porch area: 72 sqft Exterior walls: Brick VeneerDeck area: 16 sqft Trim: None
Recent residents
| Resident Name | Phone | More Info |
|---|---|---|
| Stephanie M Obrien, age 67 | (617) 792-8307 | Status: Last owner (from Jul 26, 1996 to now) Occupation: Food Preparation and Serving Related Occupations Education: Bachelor's degree or higher |
| Richard A Obrien, age 67 | (617) 653-0189 | Status: Last owner (from Jul 26, 1996 to now) Occupation: Retired Education: Graduate or professional degree |
| Patricia W Kieval | Status: Previous owner (to Nov 29, 1993) |
|
| Richard K White | Status: Previous owner (from Feb 02, 1988) |
|
| 6 ASHMONT ROAD TRUST /S TRS | Status: Previous owner (from Feb 02, 1988 to Nov 29, 1993) |
|
| Lesner M White | Status: Previous owner (from Jan 04, 1955 to Jul 26, 1996) |
|
| Betty K White | Status: Previous owner (from Jan 04, 1955 to Nov 29, 1993) |
|
| Alice F Ronan | Status: Previous owner (to Jan 04, 1955) |
|
| Francis J Ronan | Status: Previous owner (to Jan 04, 1955) |
|
| Obrien Andrew | (617) 243-0133 | |
| Alana Obrien, age 67 | (617) 243-0133 | |
| Michael E Aprille | ||
| Janine N Boudreau, age 57 | (617) 562-0042 | |
| Annmarie Winifred Cleary, age 71 | ||
| Jennifer S Famiglietti, age 53 #6 | ||
| Alana C O'brien, age 36 | (617) 470-2020 | Status: Renter |
| Claire M O'brien, age 34 | (617) 470-2020 | Status: Renter |
| Stephanie M O'brien, age 67 | (617) 470-2020 | Status: Renter |
| Andrew Obrien | (617) 821-4650 |
Business records related to this address
| Organization | Phone | More Info |
|---|---|---|
| Resolute Investors LLC | Industry: Investor Business type: Domestic Profit Corporation |
Neighbors
Assessment history
| Year | Tax | Assessment | Market |
|---|---|---|---|
| 2016 | $1,289,600.00 | ||
| 2015 | $1,205,200.00 | ||
| 2014 | $1,157,400.00 | ||
| 2013 | $1,157,400.00 | ||
| 2012 | $1,157,400.00 | ||
| 2011 | $1,158,300.00 | ||
| 2010 | $1,181,900.00 | ||
| 2009 | $1,206,000.00 | ||
| 2008 | $1,206,000.00 | ||
| 2007 | $1,215,600.00 | ||
| 2006 | $1,170,000.00 | ||
| 2005 | $1,114,300.00 | ||
| 2004 | $1,025,900.00 | ||
| 2003 | $916,000.00 | ||
| 2002 | $916,000.00 | ||
| 2001 | $751,400.00 | ||
| 2000 | $679,500.00 | ||
| 1999 | $618,300.00 | ||
| 1998 | $556,800.00 | ||
| 1997 | $517,200.00 | ||
| 1996 | $492,600.00 | ||
| 1995 | $460,200.00 | ||
| 1994 | $438,300.00 | ||
| 1993 | $438,300.00 | ||
| 1992 | $453,500.00 |



