75 Langdon St Newton, MA 02458-1803
Visit 75 Langdon St in Newton, MA, 02458-1803
This profile includes property assessor report information, real estate records and a complete residency history.
We have include the current owner’s name and phone number to help you find the right person and learn more.
PROPERTY OVERVIEW
Type: Single Family
4 beds2.5 baths4,413 sqft
4 beds2.5 baths4,413 sqft
Facts
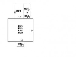
Built in 1905Trim: None Property use: Single FamilyFoundation type: Concrete Lot size: 8,254 sqftRoof type: Gambrel Effective area: 3,918 sqftRoof material: Asphalt Shingl Gross building area: 4,413 sqftHeat type: Hot Wtr Radiat Building type: ResidentialFuel type: Oil Rooms: 9Frontage: 56 feet Bedrooms: 4Basement area: 990 sqft Bathrooms: 2Porch area: 117 sqft Stories: 2.5Deck area: 228 sqft Exterior condition: AverageBasement garages: 1 Exterior walls: Wood Shingle
Features
Kitchen quality: Above Average
Recent residents
| Resident Name | Phone | More Info |
|---|---|---|
| John A Zupancic, age 60 | (617) 964-4460 | Status: Last owner (from Nov 03, 2004 to now) |
| Rachel J Leaney, age 60 | (617) 964-4460 | Status: Last owner (from Nov 03, 2004 to now) |
| Matthew A Bradford, age 62 | (617) 527-7517 | Status: Previous owner (from Jul 31, 1996 to Nov 03, 2004) |
| Mary J Bradford, age 60 | (617) 953-5327 | Status: Previous owner (from Jul 31, 1996 to Nov 03, 2004) Occupation: Farming-Forestry Occupation Education: Associate degree or higher Email: |
| Lynn C Masterman | Status: Previous owner (from Aug 01, 1989 to Jul 31, 1996) |
|
| Barry P Masterman | Status: Previous owner (from Aug 01, 1989 to Jul 31, 1996) |
|
| Mabel W Brown | Status: Previous owner (to Aug 01, 1989) |
|
| Matthew A | (617) 763-5061 | Email: |
| Mathew Bradford | (617) 763-5061 | Status: Homeowner Occupation: Farming-Forestry Occupation Education: Associate degree or higher |
Neighbors
Real estate transaction history
| Date | Event | Price | Source | Agents |
|---|---|---|---|---|
| 11/03/2004 | Sold | $769,000 | Public records | |
| 07/31/1996 | Sold | $325,000 | Public records |
Assessment history
| Year | Tax | Assessment | Market |
|---|---|---|---|
| 2016 | $850,200.00 | ||
| 2015 | $794,600.00 | ||
| 2014 | $761,100.00 | ||
| 2013 | $761,100.00 | ||
| 2012 | $761,100.00 | ||
| 2011 | $758,200.00 | ||
| 2010 | $773,700.00 | ||
| 2009 | $789,500.00 | ||
| 2008 | $789,500.00 | ||
| 2007 | $823,900.00 | ||
| 2006 | $799,900.00 | ||
| 2005 | $761,800.00 | ||
| 2004 | $692,400.00 | ||
| 2003 | $618,200.00 | ||
| 2002 | $618,200.00 | ||
| 2001 | $530,700.00 | ||
| 2000 | $423,700.00 | ||
| 1999 | $385,500.00 | ||
| 1998 | $307,200.00 | ||
| 1997 | $285,800.00 | ||
| 1996 | $272,200.00 | ||
| 1995 | $259,000.00 | ||
| 1994 | $259,000.00 | ||
| 1993 | $259,000.00 | ||
| 1992 | $288,000.00 |



