79 Dickerman Rd Newton, MA 02461-1321
Visit 79 Dickerman Rd in Newton, MA, 02461-1321
This profile includes property assessor report information, real estate records and a complete residency history.
We have include the current owner’s name and phone number to help you find the right person and learn more.
PROPERTY OVERVIEW
Type: Single Family
4 beds1.5 baths3,602 sqft
4 beds1.5 baths3,602 sqft
Facts
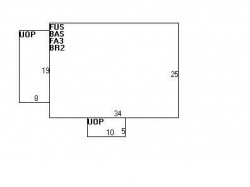
Built in 1927Foundation type: Concrete Property use: Single FamilyRoof type: Gable Lot size: 9,496 sqftRoof material: Asphalt Shingl Effective area: 2,540 sqftHeat type: Hot Wtr Radiat Gross building area: 3,602 sqftFuel type: Gas Building type: ResidentialFireplaces: 3 Rooms: 8Frontage: 60 feet Bedrooms: 4Finished attic area: 425 sqft Bathrooms: 1Basement area: 850 sqft Stories: 2Finished basement area: 213 sqft Exterior condition: AverageShed area: 80 sqft Exterior walls: Vinyl SidingPorch area: 202 sqft Trim: None
Recent residents
| Resident Name | Phone | More Info |
|---|---|---|
| Melanie L Matthies, age 70 | (617) 527-4808 | Status: Last owner (from Aug 23, 1996 to now) Occupation: Food Preparation and Serving Related Occupations Education: Bachelor's degree or higher |
| Charles C Abele | (617) 527-4808 | Status: Last owner (from Aug 23, 1996 to now) Occupation: Sales Occupations Education: High school graduate or higher |
| Chris Abele, age 65 | (617) 527-4808 | Status: Homeowner Occupation: Professional/Technical Education: Graduate or professional degree |
| Jessica Abele, age 39 | (617) 527-4808 | Status: Homeowner Occupation: Professional/Technical |
| Jessica C Ablee, age 39 | (617) 527-4808 | Status: Renter Email: |
| Jessie Ablee, age 39 | (617) 527-4808 | Status: Homeowner |
| Joseph S Daniele | Status: Previous owner (to Aug 23, 1996) |
|
| Nancy L Daniele | Status: Previous owner (to Aug 23, 1996) |
|
| J Daniele |
Neighbors
Real estate transaction history
| Date | Event | Price | Source | Agents |
|---|---|---|---|---|
| 08/23/1996 | Sold | $348,000 | Public records |
Assessment history
| Year | Tax | Assessment | Market |
|---|---|---|---|
| 2016 | $700,000.00 | ||
| 2015 | $654,200.00 | ||
| 2014 | $624,200.00 | ||
| 2013 | $624,200.00 | ||
| 2012 | $624,200.00 | ||
| 2011 | $615,900.00 | ||
| 2010 | $628,500.00 | ||
| 2009 | $641,300.00 | ||
| 2008 | $641,300.00 | ||
| 2007 | $663,000.00 | ||
| 2006 | $643,700.00 | ||
| 2005 | $613,000.00 | ||
| 2004 | $572,800.00 | ||
| 2003 | $511,400.00 | ||
| 2002 | $511,400.00 | ||
| 2001 | $440,300.00 | ||
| 2000 | $402,100.00 | ||
| 1999 | $365,900.00 | ||
| 1998 | $326,000.00 | ||
| 1997 | $299,100.00 | ||
| 1996 | $284,900.00 | ||
| 1995 | $243,500.00 | ||
| 1994 | $229,700.00 | ||
| 1993 | $229,700.00 | ||
| 1992 | $215,400.00 |



