83 Faxon St Newton, MA 02458-1034
Visit 83 Faxon St in Newton, MA, 02458-1034
This profile includes property assessor report information, real estate records and a complete residency history.
We have include the current owner’s name and phone number to help you find the right person and learn more.
For Sale
$979,000
Market Activities
Dec 2023 - present
PROPERTY OVERVIEW
Type: Two Family
5 beds1 bath4,342 sqft
5 beds1 bath4,342 sqft
Facts
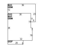
Built in 1861Trim: None Property use: Two FamilyFoundation type: Brick/Fldstone Lot size: 7,200 sqftRoof type: Gable Effective area: 4,342 sqftRoof material: Asphalt Shingl Building type: ResidentialHeat type: Steam Rooms: 10Fuel type: Oil Bedrooms: 5Frontage: 60 feet Bathrooms: 2Basement area: 1,580 sqft Stories: 2Shed area: 150 sqft Exterior condition: FairPorch area: 100 sqft Exterior walls: Wood Shingle
Features
Kitchen quality: Above AverageInterior condition: Good
Recent residents
| Resident Name | Phone | More Info |
|---|---|---|
| Albert B Bibbo | Status: Previous owner (from Jan 19, 1995 to Jan 19, 1995) Occupation: Service Occupations Education: High school graduate or higher |
|
| Nicolantonio Bibbo | Status: Previous owner (to Jan 19, 1995) |
|
| Christine Bibbo, age 68 | Status: Homeowner |
|
| Eleana Bibbo, age 63 | ||
| Janet M Bibbo, age 95 | Status: Renter Occupation: Service Occupations Education: High school graduate or higher |
|
| Margaret M Costello, age 59 #2 |
Neighbors
100 Faxon St
K E Ahern
K E Ahern
11A Faxon St
A Anisimov
A Anisimov
Assessment history
| Year | Tax | Assessment | Market |
|---|---|---|---|
| 2016 | $613,200.00 | ||
| 2015 | $573,100.00 | ||
| 2014 | $543,000.00 | ||
| 2013 | $543,000.00 | ||
| 2012 | $543,000.00 | ||
| 2011 | $546,500.00 | ||
| 2010 | $557,700.00 | ||
| 2009 | $587,100.00 | ||
| 2008 | $587,100.00 | ||
| 2007 | $620,300.00 | ||
| 2006 | $602,200.00 | ||
| 2005 | $584,700.00 | ||
| 2004 | $428,100.00 | ||
| 2003 | $375,500.00 | ||
| 2002 | $375,500.00 | ||
| 2001 | $321,300.00 | ||
| 2000 | $293,400.00 | ||
| 1999 | $267,000.00 | ||
| 1998 | $266,000.00 | ||
| 1997 | $266,000.00 | ||
| 1996 | $253,300.00 | ||
| 1995 | $188,600.00 | ||
| 1994 | $198,500.00 | ||
| 1993 | $198,500.00 | ||
| 1992 | $207,400.00 |



