11 Elinor Rd Newton, MA 02461-1832
Visit 11 Elinor Rd in Newton, MA, 02461-1832
This profile includes property assessor report information, real estate records and a complete residency history.
We have include the current owner’s name and phone number to help you find the right person and learn more.
Building Permits
Feb 2, 2012
Description: Remodel kitchen & bath, gutting out & reinsulating, new electrical, and plumbing. installing new cabinetry & hardwood floors. beam design to be determined after exploration demo
- Contractor: Glenn J Aucoin
- Valuation: $5,104,000
- Fee: $949.34 paid to City of Newton, Massachusetts
- Parcel #: 81021 0001
- Permit #: 12020020
PROPERTY OVERVIEW
Type: Single Family
3 beds1.5 baths1,787 sqft
3 beds1.5 baths1,787 sqft
Facts
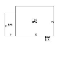
Built in 1940Trim: None Property use: Single FamilyFoundation type: Concrete Lot size: 5,669 sqftRoof type: Gable Effective area: 1,587 sqftRoof material: Asphalt Shingl Gross building area: 1,787 sqftHeat type: Forced Air-Duc Building type: ResidentialFuel type: Gas Rooms: 7Air conditioning: Unit/AC Bedrooms: 3Frontage: 105 feet Stories: 1.75Shed area: 88 sqft Exterior condition: AveragePorch area: 16 sqft Exterior walls: Vinyl Siding
Features
Kitchen quality: Above Average
Recent residents
| Resident Name | Phone | More Info |
|---|---|---|
| 11 ELINOR ROAD REALTY TRUST | Status: Last owner (from Aug 14, 2006 to now) |
|
| Eva R Radding, age 70 | (617) 244-1825 | Status: Previous owner (from Aug 14, 2006 to Aug 14, 2006) Occupation: Professional/Technical Education: Graduate or professional degree Email: |
| Alan E Radding, age 74 | (617) 244-1825 | Status: Previous owner (from Aug 14, 2006 to Aug 14, 2006) Occupation: Administrative Support Occupations, Including Clerical Occupations Education: Associate degree or higher |
| Amy J Radding, age 36 | (617) 244-1825 | Status: Homeowner |
| Lisa Radding, age 39 | (617) 244-1825 | Status: Homeowner Occupation: Professional/Technical |
| Ann C Radding, age 78 |
Business records related to this address
| Organization | Phone | More Info |
|---|---|---|
| Alan Radding Technologywriter | (857) 540-5938 | Industry: Copies |
| Business & Technology Pub | (617) 332-4369 | Categories: Secretarial Services Industry: Formal Writting Service/Computer Related Services Site: |
Neighbors
Assessment history
| Year | Tax | Assessment | Market |
|---|---|---|---|
| 2016 | $515,400.00 | ||
| 2015 | $481,700.00 | ||
| 2014 | $457,500.00 | ||
| 2013 | $378,300.00 | ||
| 2012 | $378,300.00 | ||
| 2011 | $371,900.00 | ||
| 2010 | $379,500.00 | ||
| 2009 | $387,200.00 | ||
| 2008 | $387,200.00 | ||
| 2007 | $408,500.00 | ||
| 2006 | $396,600.00 | ||
| 2005 | $377,700.00 | ||
| 2004 | $353,800.00 | ||
| 2003 | $315,900.00 | ||
| 2002 | $315,900.00 | ||
| 2001 | $259,700.00 | ||
| 2000 | $237,200.00 | ||
| 1999 | $215,800.00 | ||
| 1998 | $197,200.00 | ||
| 1997 | $186,000.00 | ||
| 1996 | $177,100.00 | ||
| 1995 | $167,800.00 | ||
| 1994 | $167,800.00 | ||
| 1993 | $167,800.00 | ||
| 1992 | $173,900.00 |



