117 Osborne Path Newton, MA 02459-3542
Visit 117 Osborne Path in Newton, MA, 02459-3542
This profile includes property assessor report information, real estate records and a complete residency history.
We have include the current owner’s name and phone number to help you find the right person and learn more.
PROPERTY OVERVIEW
Type: Charitable Housing/other
4 beds2 bathsLot: 15,053 sqft
4 beds2 bathsLot: 15,053 sqft
Facts
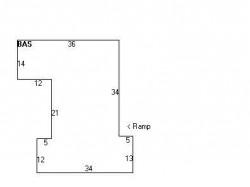
Built in 1949Trim: None Property use: Charitable Housing/otherFoundation type: Slab Lot size: 15,053 sqftRoof type: Hip Building type: ResidentialRoof material: Asphalt Shingl Rooms: 7Heat type: Forced Air-Duc Bedrooms: 4Fuel type: Gas Bathrooms: 2Air conditioning: Unit/AC Stories: 1Frontage: 132 feet Exterior condition: AverageDetached garage area: 240 sqft Exterior walls: Wood Shingle
Recent residents
| Resident Name | Phone | More Info |
|---|---|---|
| RIVERSIDE COMMUNITY MENTAL HEALTH & RETARDATI | Status: Last owner (from Jul 13, 2000 to now) |
|
| NATALIE W SEGAL REALTY TRUST /S TR &AL | Status: Previous owner (to Jul 13, 2000) |
|
| NATALIE W SEGAL REALTY TRUST /S TR | Status: Previous owner (from Mar 21, 1991) |
|
| Natalie W Segal, age 105 | Status: Previous owner (from Apr 26, 1974 to Jul 13, 2000) |
|
| Myron J Segal, age 106 | Status: Previous owner (to Apr 26, 1974) |
|
| Irene Forman, age 78 | (617) 767-6216 | Status: Renter Occupation: Administrative Support Occupations, Including Clerical Occupations Education: High school graduate or higher Email: |
| G Home | (617) 969-4850 | |
| Florence A Kissell, age 76 | Status: Renter Occupation: Administrative Support Occupations, Including Clerical Occupations Education: High school graduate or higher |
|
| John Quinn | (617) 777-2059 | Status: Renter Occupation: Building and Grounds Cleaning and Maintenance Occupations Education: High school graduate or higher Email: |
| Mike Segal | (617) 332-2314 |
Business records related to this address
| Organization | Phone | More Info |
|---|---|---|
| Osborne Path | (617) 969-4180 | Categories: Residential Care Facilities Industry: Home Health Care Services Site: |
Neighbors
103 Osborne Path
N Kasseris
N Kasseris
Assessment history
| Year | Tax | Assessment | Market |
|---|---|---|---|
| 2016 | $401,700.00 | ||
| 2015 | $401,700.00 | ||
| 2014 | $401,700.00 | ||
| 2013 | $401,700.00 | ||
| 2012 | $401,700.00 | ||
| 2011 | $401,700.00 | ||
| 2010 | $401,700.00 | ||
| 2009 | $401,700.00 | ||
| 2008 | $401,700.00 | ||
| 2001 | $256,200.00 | ||
| 2000 | $234,000.00 | ||
| 1999 | $212,900.00 | ||
| 1998 | $194,100.00 | ||
| 1997 | $178,100.00 | ||
| 1996 | $178,100.00 | ||
| 1995 | $166,400.00 | ||
| 1994 | $163,100.00 | ||
| 1993 | $163,100.00 | ||
| 1992 | $181,300.00 |



