16 Osborne Path Newton, MA 02459-3542
Visit 16 Osborne Path in Newton, MA, 02459-3542
This profile includes property assessor report information, real estate records and a complete residency history.
We have include the current owner’s name and phone number to help you find the right person and learn more.
PROPERTY OVERVIEW
Type: Single Family
3 beds2 baths1,471 sqft
3 beds2 baths1,471 sqft
Facts
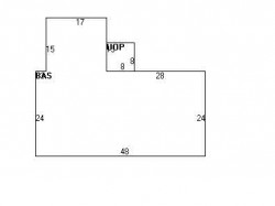
Built in 1949Trim: None Property use: Single FamilyFoundation type: Slab Lot size: 14,217 sqftRoof type: Gable Effective area: 1,471 sqftRoof material: Asphalt Shingl Building type: ResidentialHeat type: Hot Water Rooms: 6Fuel type: Gas Bedrooms: 3Air conditioning: Central Bathrooms: 2Frontage: 80 feet Exterior condition: AverageShed area: 54 sqft Exterior walls: Vinyl SidingPorch area: 64 sqft
Recent residents
| Resident Name | Phone | More Info |
|---|---|---|
| GENEVIEVE F OKUN 2007 REVOCABLE TRUST | Status: Last owner (from Jul 11, 2007 to now) |
|
| Genevieve F Okun, age 100 | (617) 332-6365 | Status: Previous owner (from Jul 11, 2007 to Jul 11, 2007) |
| Barry Okun | (617) 332-6365 | |
| Frank M Okun, age 101 | (617) 332-6365 | |
| Robert J Hicks | Status: Previous owner (from Jun 21, 1954) |
|
| Signe L Hicks | Status: Previous owner (from Jun 21, 1954) |
|
| Helen E Bradley | Status: Previous owner (to Jun 21, 1954) |
|
| Robert F Bradley | Status: Previous owner (to Jun 21, 1954) |
|
| Andru A Okun, age 38 | (781) 820-1033 | Status: Renter |
| Edward A Okun, age 40 | (781) 910-0911 | Status: Renter Email: |
Neighbors
Assessment history
| Year | Tax | Assessment | Market |
|---|---|---|---|
| 2016 | $428,200.00 | ||
| 2015 | $400,200.00 | ||
| 2014 | $378,300.00 | ||
| 2013 | $378,300.00 | ||
| 2012 | $378,300.00 | ||
| 2011 | $378,000.00 | ||
| 2010 | $385,700.00 | ||
| 2009 | $393,600.00 | ||
| 2008 | $393,600.00 | ||
| 2007 | $441,600.00 | ||
| 2006 | $428,700.00 | ||
| 2005 | $408,300.00 | ||
| 2004 | $335,700.00 | ||
| 2003 | $299,700.00 | ||
| 2002 | $299,700.00 | ||
| 2001 | $262,700.00 | ||
| 2000 | $239,900.00 | ||
| 1999 | $218,300.00 | ||
| 1998 | $197,100.00 | ||
| 1997 | $180,800.00 | ||
| 1996 | $180,800.00 | ||
| 1995 | $155,600.00 | ||
| 1994 | $152,500.00 | ||
| 1993 | $152,500.00 | ||
| 1992 | $169,600.00 |



