9 Mosman St Newton, MA 02465-1303
Visit 9 Mosman St in Newton, MA, 02465-1303
This profile includes property assessor report information, real estate records and a complete residency history.
We have include the current owner’s name and phone number to help you find the right person and learn more.
PROPERTY OVERVIEW
Type: Single Family
3 beds1.5 baths1,750 sqft
3 beds1.5 baths1,750 sqft
Facts
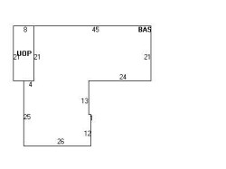
Built in 1953Trim: Half Wall Property use: Single FamilyFoundation type: Slab Lot size: 9,400 sqftRoof type: Gable Effective area: 1,750 sqftRoof material: Asphalt Shingl Building type: ResidentialHeat type: Hot Water Rooms: 7Fuel type: Oil Bedrooms: 2Air conditioning: Central Stories: 1Frontage: 78 feet Exterior condition: AverageShed area: 35 sqft Exterior walls: Vinyl SidingPorch area: 168 sqft
Recent residents
| Resident Name | Phone | More Info |
|---|---|---|
| Erin L Blanchfield, age 46 | Status: Last owner (from Aug 01, 2008 to now) |
|
| William E Blanchfield | Status: Last owner (from Aug 01, 2008 to now) |
|
| Robert L Garber, age 100 | (617) 244-5823 | Status: Previous owner (from Aug 24, 1981) |
| Eileen H Garber, age 99 | (617) 244-5823 | Status: Previous owner (from Aug 24, 1981 to Aug 01, 2008) |
| Kenneth Leeser | Status: Previous owner (to Aug 24, 1981) |
|
| Nancy Garber | (617) 332-2468 | |
| Robt Garber | (617) 332-2468 |
Historical businesses records
| Organization | Phone | More Info |
|---|---|---|
| ROBEEN SALES CORP | Business type: Domestic Profit Corporation Inactive: 19950316 |
Neighbors
Real estate transaction history
| Date | Event | Price | Source | Agents |
|---|---|---|---|---|
| 08/01/2008 | Sold | $461,800 | Public records |
Assessment history
| Year | Tax | Assessment | Market |
|---|---|---|---|
| 2016 | $519,800.00 | ||
| 2015 | $485,800.00 | ||
| 2014 | $456,700.00 | ||
| 2013 | $456,700.00 | ||
| 2012 | $456,700.00 | ||
| 2011 | $455,000.00 | ||
| 2010 | $464,300.00 | ||
| 2009 | $473,800.00 | ||
| 2008 | $537,000.00 | ||
| 2007 | $538,500.00 | ||
| 2006 | $522,800.00 | ||
| 2005 | $497,900.00 | ||
| 2004 | $456,800.00 | ||
| 2003 | $407,900.00 | ||
| 2002 | $407,900.00 | ||
| 2001 | $330,800.00 | ||
| 2000 | $302,100.00 | ||
| 1999 | $274,900.00 | ||
| 1998 | $230,400.00 | ||
| 1997 | $217,400.00 | ||
| 1996 | $207,000.00 | ||
| 1995 | $197,000.00 | ||
| 1994 | $197,000.00 | ||
| 1993 | $197,000.00 | ||
| 1992 | $209,300.00 |



